豆豆网

 找回密码
 立即注册

QQ登录

只需一步,快速开始

查看: 1118|回复: 0

文体活动服务中心施工方案图纸CAD平面图及剖面图,立面图

[复制链接]

0

主题

0

帖子

410

积分

超级版主

Rank: 8Rank: 8

积分
410
发表于 2021-10-28 21:21:13 | 显示全部楼层 |阅读模式

该帖子包含附件可供参考学习和下载,您可以 搜索 更多您想要的资源


  • 建筑高度类型:多层建筑
  • 图纸设计深度:施工图
  • 项目所在地:广东
  • 图纸设计流派:现代
  • 图纸设计格式:CAD2000
  • 参考图纸:30张
  • 设计年代:近代
[广东]文体活动服务中心施工图CAD2018
内容包含:
一、资料目录 二、建筑设计说明 三、施工用料做法 四、建筑平面图 五、建筑立面图 六、建筑剖面图
立面.jpg
首层平面图.jpg
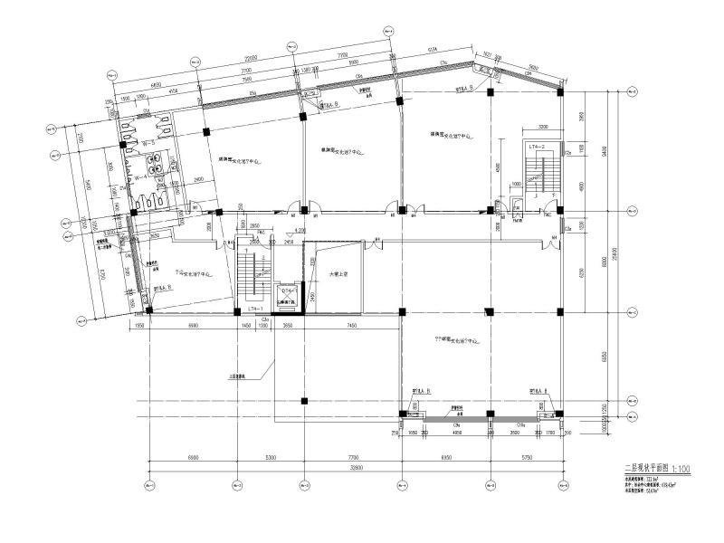
二层平面图.jpg
三层平面图.jpg
服务中心立面1.jpg
服务中心立面2.jpg
服务中心立面.jpg
剖面图.jpg
立面
立面
首层平面图
首层平面图
二层平面图
二层平面图
三层平面图
三层平面图
服务中心立面1
服务中心立面1
服务中心立面2
服务中心立面2
服务中心立面
服务中心立面
剖面图
剖面图
以上是部分图纸截图,有些图框没有放大后再截图,可能截图里不清晰或者看不到内容,您可以在下载后查看具体内容

附件2099v11cddfcwd002cc0fw1.zip

10.05 MB

下载  售价: 100 积分    赚积分

相关帖子

回复

使用道具 举报

您需要登录后才可以回帖 登录 | 立即注册

本版积分规则

QQ|联系我们|豆豆网 ( 苏ICP备20004746号-1 )

GMT+8, 2025-11-17 00:40 , Processed in 0.019413 second(s), 27 queries .

本站所有内容均由网友自主分享,如有侵权内容或者违法行为,请及时联系站长删除,本站将根据实际情况进行积分奖励!请查看:免责声明

快速回复 返回顶部 返回列表