豆豆网

 找回密码
 立即注册

QQ登录

只需一步,快速开始

查看: 1290|回复: 0

学校钢筋砼结构桥梁施工图纸设计cad构造图

[复制链接]

0

主题

0

帖子

963

积分

超级版主

Rank: 8Rank: 8

积分
963
发表于 2021-10-29 22:44:39 | 显示全部楼层 |阅读模式

该帖子包含附件可供参考学习和下载,您可以 搜索 更多您想要的资源


  • 位置:贵州
  • 设计年代:近代
  • 使用性:人行桥
  • 材料类型:钢筋砼桥
  • 位置:贵州
  • 设计年代:近代
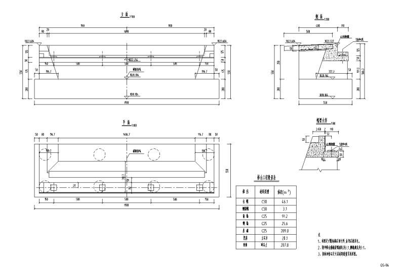
该资料为 [贵州]学校钢筋砼结构桥梁施工图设计2019
相关图片
桥梁平面图.png
桥台一般构造图.png
桥型布置图.png
支座垫石、防震挡块构造图.png
桥梁平面图
桥梁平面图
桥台一般构造图
桥台一般构造图
桥型布置图
桥型布置图
支座垫石、防震挡块构造图
支座垫石、防震挡块构造图
以上是部分图纸截图,有些图框没有放大后再截图,可能截图里不清晰或者看不到内容,您可以在下载后查看具体内容

附件2099v11cscdedsdcews10w1.rar

14.44 MB

下载  售价: 100 积分    赚积分

相关帖子

回复

使用道具 举报

您需要登录后才可以回帖 登录 | 立即注册

本版积分规则

QQ|联系我们|豆豆网 ( 苏ICP备20004746号-1 )

GMT+8, 2025-12-27 23:15 , Processed in 0.015117 second(s), 27 queries .

本站所有内容均由网友自主分享,如有侵权内容或者违法行为,请及时联系站长删除,本站将根据实际情况进行积分奖励!请查看:免责声明

快速回复 返回顶部 返回列表