豆豆网

 找回密码
 立即注册

QQ登录

只需一步,快速开始

查看: 1644|回复: 0

中学学生宿舍室外配套工程施工图纸cad平面图

[复制链接]

0

主题

0

帖子

1516

积分

超级版主

Rank: 8Rank: 8

积分
1516
发表于 2021-10-29 23:55:36 | 显示全部楼层 |阅读模式

该帖子包含附件可供参考学习和下载,您可以 搜索 更多您想要的资源


  • 绿地类型:中小学校
  • 图纸设计深度 :施工图
  • 项目所在地:贵州
  • 图纸设计风格:现代风格
  • 图纸设计格式:CAD2000
  • 设计年代:近代
  • 景观设施:景墙围墙,栏杆,树池花坛花钵,铺装设计
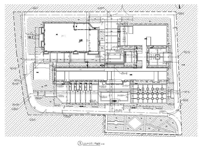
该附件是 某中学学生宿舍室外配套工程施工图CAD 目录主要包括 总平面图索引图、 标准工程做法详图、 标准种植池详图、 标准残坡及栏杆详图、 1.8M标准景墙详图、 升旗台详图、种植设计平面图、室外给排水
总平面图索引图.jpg
龙岗中学尺寸平面图.jpg
标准工程做法详图一 .jpg
标准工程做法详图二 .jpg
标准种植池详图 .jpg
标准残坡及栏杆详图 .jpg
1.8M标准景墙详图 .jpg
升旗台详图 .jpg
总平面图索引图
总平面图索引图
龙岗中学尺寸平面图
龙岗中学尺寸平面图
标准工程做法详图一
标准工程做法详图一
标准工程做法详图二
标准工程做法详图二
标准种植池详图
标准种植池详图
标准残坡及栏杆详图
标准残坡及栏杆详图
1.8M标准景墙详图
1.8M标准景墙详图
升旗台详图
升旗台详图
以上是部分图纸截图,有些图框没有放大后再截图,可能截图里不清晰或者看不到内容,您可以在下载后查看具体内容

附件2099v11cdfwwc0d0fd1c0dd.rar

24.93 MB

下载  售价: 100 积分    赚积分

相关帖子

回复

使用道具 举报

您需要登录后才可以回帖 登录 | 立即注册

本版积分规则

QQ|联系我们|豆豆网 ( 苏ICP备20004746号-1 )

GMT+8, 2025-12-28 05:57 , Processed in 0.015094 second(s), 27 queries .

本站所有内容均由网友自主分享,如有侵权内容或者违法行为,请及时联系站长删除,本站将根据实际情况进行积分奖励!请查看:免责声明

快速回复 返回顶部 返回列表