豆豆网

 找回密码
 立即注册

QQ登录

只需一步,快速开始

查看: 1687|回复: 0

6层大学研究生院扩建框架结构设计CAD图纸(基础平面图)

[复制链接]

0

主题

0

帖子

1596

积分

超级版主

Rank: 8Rank: 8

积分
1596
发表于 2020-2-23 21:23:42 | 显示全部楼层 |阅读模式

该帖子包含附件可供参考学习和下载,您可以 搜索 更多您想要的资源


  • 建筑类别:教育,科研
  • 建筑高度类型:多层建筑
  • 建筑地上层数:6层
  • 建筑地下层数:1层
  • 图纸设计深度:施工图
  • 民用建筑设计使用年限:50年
  • 建筑设计结构形式:钢筋混凝土结构,钢结构
  • 钢筋混凝土结构:框架
  • 钢结构:网架
  • 基础形式 :桩基础
  • 结构安全等级:二级
  • 地基基础设计等级:丙级
  • 抗震设防烈度:7度抗震
  • 风压:0.50kN/平方米
  • 雪压:0.40kN/平方米
  • 地下室功能:人防
  • 参考图纸:21张
  • 设计年代:近代

附件详情

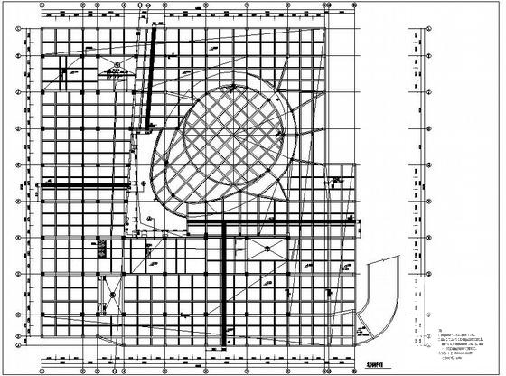
该资料包含:结构设计总说明,桩 平面布置图 ,基础平面图,基础详图(一),基础详图(二),地下室墙、柱平面图,首层至二层框架柱平面图,三层至屋顶层框架柱平面图,零层结构平面图,零层梁平面图,首层结构平面图,首层梁平面图,二层结构平面图,二层梁平面图,三层结构平面图,三层梁平面图,五层结构平面图,五层梁平面图,屋顶层结构平面图,屋顶层梁平面图, 楼梯详图 ,汽车坡道详图,网架平面图、立面图、剖面图,网架材料表,网架安装图

研究框架结构 - 1
第 1 张图
研究框架结构 - 2
第 2 张图
研究框架结构 - 3
第 3 张图
研究框架结构 - 4
第 4 张图
以上是部分图纸截图,有些图框没有放大后再截图,可能截图里不清晰或者看不到内容,您可以在下载后查看具体内容

温馨提示:该资料由网友于2020-2-23 21:23:42上传分享,您可以下载该资料进行学习和参考,如有侵权内容或者违法行为,请及时联系站长删除,如有疑问,您可以在结构设计专区发帖交流相关知识。

附件2099v11edfc0ccdde1cdcc2cc2.rar

2.74 MB

下载  售价: 100 积分    赚积分

研究框架结构相关帖子

回复

使用道具 举报

您需要登录后才可以回帖 登录 | 立即注册

本版积分规则

QQ|联系我们|豆豆网 ( 苏ICP备20004746号-1 )

GMT+8, 2025-12-21 02:46 , Processed in 0.019898 second(s), 28 queries .

本站所有内容均由网友自主分享,如有侵权内容或者违法行为,请及时联系站长删除,本站将根据实际情况进行积分奖励!请查看:免责声明

快速回复 返回顶部 返回列表