豆豆网

 找回密码
 立即注册

QQ登录

只需一步,快速开始

查看: 475|回复: 0

一份2层条形基础框架结构超市结构CAD施工图纸(8度抗震)

[复制链接]

0

主题

0

帖子

1597

积分

超级版主

Rank: 8Rank: 8

积分
1597
发表于 2020-2-24 12:43:10 | 显示全部楼层 |阅读模式

该帖子包含附件可供参考学习和下载,您可以 搜索 更多您想要的资源


  • 建筑类别:商业
  • 建筑高度类型:多层建筑
  • 建筑地上层数:2层
  • 图纸设计深度:施工图
  • 建筑设计结构形式:钢筋混凝土结构
  • 钢筋混凝土结构:框架
  • 基础形式 :条形基础
  • 结构安全等级:二级
  • 地基基础设计等级:丙级
  • 抗震设防烈度:8度抗震
  • 风压:0.45kN/平方米
  • 雪压:0.40kN/平方米
  • 参考图纸:10张

附件详情

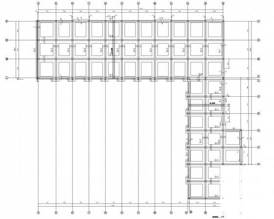
结构设计总说明、基础 平面布置图 及基础详图、柱平法施工图、梁平法施工图、板配筋图、 楼梯详图 共10张图纸。

柱平法施工图

梁平法施工图

节点详图

楼梯剖面图

板配筋图

框架结构超市 - 1
第 1 张图
框架结构超市 - 2
第 2 张图
框架结构超市 - 3
第 3 张图
框架结构超市 - 4
第 4 张图
框架结构超市 - 5
第 5 张图
框架结构超市 - 6
第 6 张图
以上是部分图纸截图,有些图框没有放大后再截图,可能截图里不清晰或者看不到内容,您可以在下载后查看具体内容

温馨提示:该资料由网友于2020-2-24 12:43:10上传分享,您可以下载该资料进行学习和参考,如有侵权内容或者违法行为,请及时联系站长删除,如有疑问,您可以在建筑施工专区发帖交流相关知识。

附件2099v11edfcc1fww10ssfseecd.zip

472.67 KB

下载  售价: 100 积分    赚积分

框架结构超市相关帖子

回复

使用道具 举报

您需要登录后才可以回帖 登录 | 立即注册

本版积分规则

QQ|联系我们|豆豆网 ( 苏ICP备20004746号-1 )

GMT+8, 2025-12-30 10:07 , Processed in 0.015304 second(s), 28 queries .

本站所有内容均由网友自主分享,如有侵权内容或者违法行为,请及时联系站长删除,本站将根据实际情况进行积分奖励!请查看:免责声明

快速回复 返回顶部 返回列表