豆豆网

 找回密码
 立即注册

QQ登录

只需一步,快速开始

查看: 1823|回复: 0

一份多层住宅楼煤气设计CAD施工图纸(设计说明)

[复制链接]

0

主题

0

帖子

1075

积分

超级版主

Rank: 8Rank: 8

积分
1075
发表于 2020-2-25 21:59:41 | 显示全部楼层 |阅读模式

该帖子包含附件可供参考学习和下载,您可以 搜索 更多您想要的资源


  • 附件设计说明:有
  • 建筑类别:住宅
  • 建筑高度类型:多层建筑
  • 图纸设计深度:施工图
  • 参考图纸:5张
  • 设计年代:近代
  • 设计内容:其它
  • 项目所在地:湖北

附件详情

  • 设计及施工说明
  • 材料汇总表
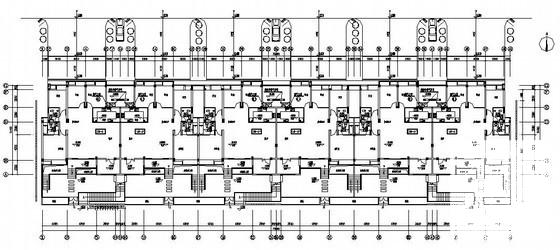
  • 煤气平面图
  • 煤气立管系统图

附件详情

本图为武汉多层住宅楼煤气设计施工图纸,此楼共五层,共有30户居民。每户按一台双眼灶和一台10L/h的燃气热水器考虑,燃气立管采用室外安装方式,燃气表低位安装在厨房,采用低压天然气管道供气。该资料不含外网设计。
设计年代:近代,图纸10张。

煤气立管系统图

住宅楼煤气 - 1
第 1 张图
住宅楼煤气 - 2
第 2 张图
以上是部分图纸截图,有些图框没有放大后再截图,可能截图里不清晰或者看不到内容,您可以在下载后查看具体内容

温馨提示:该资料由网友于2020-2-25 21:59:41上传分享,您可以下载该资料进行学习和参考,如有侵权内容或者违法行为,请及时联系站长删除,如有疑问,您可以在居住建筑专区发帖交流相关知识。

附件2099v11ede2c0sssecwedcc020.rar

1.68 MB

售价: 100 积分    赚积分

住宅楼煤气相关帖子

回复

使用道具 举报

您需要登录后才可以回帖 登录 | 立即注册

本版积分规则

QQ|联系我们|豆豆网 ( 苏ICP备20004746号-1 )

GMT+8, 2025-12-30 18:12 , Processed in 0.015096 second(s), 28 queries .

本站所有内容均由网友自主分享,如有侵权内容或者违法行为,请及时联系站长删除,本站将根据实际情况进行积分奖励!请查看:免责声明

快速回复 返回顶部 返回列表