豆豆网

 找回密码
 立即注册

QQ登录

只需一步,快速开始

查看: 1704|回复: 0

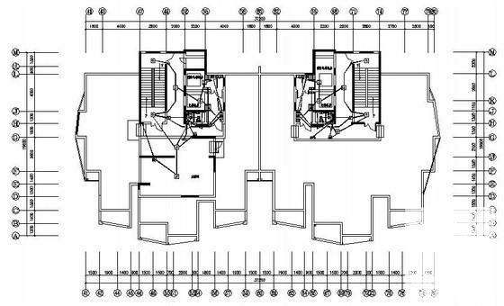
[CAD]小区22层住宅楼弱电图纸(火灾自动报警系统)

[复制链接]

0

主题

0

帖子

629

积分

超级版主

Rank: 8Rank: 8

积分
629
发表于 2020-2-26 21:08:56 | 显示全部楼层 |阅读模式

该帖子包含附件可供参考学习和下载,您可以 搜索 更多您想要的资源


  • 建筑类别:住宅
  • 建筑高度类型:高层建筑
  • 建筑设计面积:30322.40平方米
  • 建筑地上层数:22层
  • 建筑地下层数:1层
  • 图纸设计深度:施工图
  • 参考图纸:15张
  • 弱电设计: 火灾自动报警系统 ,出入口控制系统,通信系统,有线电视和卫星接收系统,信息网络系统

附件详情

  • 一、弱电设计说明
  • 二、火灾自动报警系统图
  • 三、弱电系统图
  • 四、 弱电平面图

附件详情

本稿件是某小区高层住宅楼弱电图纸,工程建筑平面为组合塔式布置,一梯三户,一、二单元共22层;三、四单元为18层;五单元为14层;共282户。总建筑面积为30322.40平方米,其中地下部分为1440.87平方米,地上部分住宅为28881.53平方米,阳台面积为1640.32平方米。弱电设计包含消防自动报警系统、有线电视系统、网络通讯系统、楼宇可视对讲系统。

第 1 张图
第 1 张图
第 2 张图
第 2 张图
第 3 张图
第 3 张图
第 4 张图
第 4 张图
以上是部分图纸截图,有些图框没有放大后再截图,可能截图里不清晰或者看不到内容,您可以在下载后查看具体内容

温馨提示:该资料由网友于2020-2-26 21:08:56上传分享,您可以下载该资料进行学习和参考,如有侵权内容或者违法行为,请及时联系站长删除,如有疑问,您可以在居住建筑专区发帖交流相关知识。

附件2099v11edecc0wsces01sc2cc0.rar

1.72 MB

下载  售价: 100 积分    赚积分

相关帖子

回复

使用道具 举报

您需要登录后才可以回帖 登录 | 立即注册

本版积分规则

QQ|联系我们|豆豆网 ( 苏ICP备20004746号-1 )

GMT+8, 2025-12-18 04:36 , Processed in 0.017490 second(s), 27 queries .

本站所有内容均由网友自主分享,如有侵权内容或者违法行为,请及时联系站长删除,本站将根据实际情况进行积分奖励!请查看:免责声明

快速回复 返回顶部 返回列表