豆豆网

 找回密码
 立即注册

QQ登录

只需一步,快速开始

查看: 474|回复: 0

一份34层办公楼暖通系统设计CAD施工图纸(VAV系统高压微雾加湿)

[复制链接]

0

主题

0

帖子

1487

积分

超级版主

Rank: 8Rank: 8

积分
1487
发表于 2020-2-28 08:24:26 | 显示全部楼层 |阅读模式

该帖子包含附件可供参考学习和下载,您可以 搜索 更多您想要的资源


  • 附件设计说明:有
  • 建筑类别:办公
  • 建筑高度类型:超高层建筑
  • 建筑设计面积:57531平方米
  • 建筑地上层数:34层
  • 图纸设计深度:施工图
  • 参考图纸:40张
  • 设计年代:近代
  • 设计内容:空调,通风,采暖,防排烟,冷热源
  • 冷热源:电动压缩式冷水机组,空气调节器
  • 空调系统:全空气系统,制冷剂系统
  • 全空气系统:定风量
  • 水系统:单式泵,定流量,变流量,双管制,同程式,闭式
  • 送风方式:散流器送风
  • 项目所在地:辽宁

附件详情

  • 暖通空调设计说明
  • 图例
  • 设备表
  • 排烟系统原理图
  • 加压送风系统原理图
  • 空调通风系统原理图
  • 空调水系统原理图
  • 采暖系统原理图
  • 地热盘管布置图
  • B1夹层通风空调平面图
  • 通风空调及防排烟平面图
  • 空调及采暖水平面图
  • 采暖系统图
  • 空调水系统图
  • 高压微雾加湿器系统示意图
  • ...

附件详情

一、项目概要:
项目为办公楼,地上34层,建筑面积57531m2,建筑高度161.90m。B区地下建筑面积36080m2...
二、冷热源:
冷源采用电制冷冷水机组,机组为离心机组+螺杆机组。采用环保冷媒。冷冻水温度为6/12℃,冷却水温度为32/37℃...
三、空调系统:
1.空调冷冻水系统在竖向分成高低2个分区。1~14层为低区,15~34层为高区。
2.空调水系统采用两管制、一次泵变流量系统。系统均为闭式循环系统,冷却水系统为定流量系统。
3.办公塔楼部分采用VAV 变风量空调系统 ,采用单风道末端。
4.大厅采用定风量全空气系统;大会议厅、前厅采用定风量空调系统...
四、采暖系统:
1.办公塔楼部分竖向干管为同程式。
2.办公楼标准层沿窗边设置地板嵌入式散热器辅助供暖。
3.办公楼为散热器系统供暖,大堂为地板辐射供暖...
五、通风系统:
1.公建卫生间排风采用垂直布置。卫生间按换气系数10次排气。
2.厨房排油烟风量暂按照厨房高度3m,50次/H换气设计。
3.地下车库设计机械排风系统和补风系统,排风换气次数为6~4次/h...
六、防排烟系统:
1.防烟楼梯间、消防电梯间前室、合用前室设加压送风系统。
2.各避难层避难间均设正压送风系统,机械加压送风量按避难层净面积每平方米不小于30m3/h计算...

图纸共40张。


地热盘管布置图

采暖系统图

高压微雾加湿器一拖四系统示意图

空调水系统图

空调通风系统原理图

空调及采暖水平面图

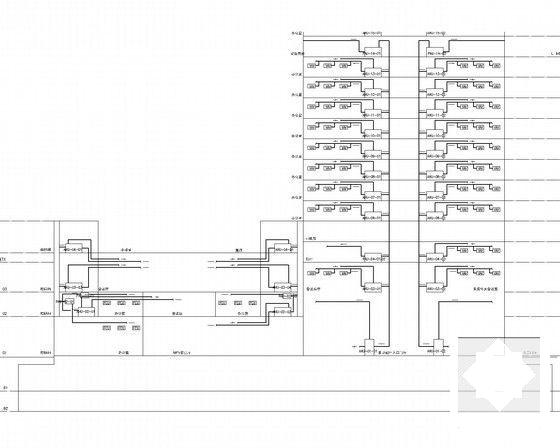
VAV系统 - 1
第 1 张图
VAV系统 - 2
第 2 张图
VAV系统 - 3
第 3 张图
VAV系统 - 4
第 4 张图
以上是部分图纸截图,有些图框没有放大后再截图,可能截图里不清晰或者看不到内容,您可以在下载后查看具体内容

温馨提示:该资料由网友于2020-2-28 08:24:26上传分享,您可以下载该资料进行学习和参考,如有侵权内容或者违法行为,请及时联系站长删除,如有疑问,您可以在建筑施工专区发帖交流相关知识。

附件2099v11edec2w2eedc0secdcce.rar

5.16 MB

下载  售价: 100 积分    赚积分

VAV系统相关帖子

回复

使用道具 举报

您需要登录后才可以回帖 登录 | 立即注册

本版积分规则

QQ|联系我们|豆豆网 ( 苏ICP备20004746号-1 )

GMT+8, 2025-12-23 04:11 , Processed in 0.018105 second(s), 27 queries .

本站所有内容均由网友自主分享,如有侵权内容或者违法行为,请及时联系站长删除,本站将根据实际情况进行积分奖励!请查看:免责声明

快速回复 返回顶部 返回列表