豆豆网

 找回密码
 立即注册

QQ登录

只需一步,快速开始

查看: 2690|回复: 0

一份8层办公楼暖通CAD施工图纸(空调水系统)

[复制链接]

0

主题

0

帖子

1096

积分

超级版主

Rank: 8Rank: 8

积分
1096
发表于 2020-2-27 12:39:05 | 显示全部楼层 |阅读模式

该帖子包含附件可供参考学习和下载,您可以 搜索 更多您想要的资源


  • 附件设计说明:有
  • 建筑类别:办公,餐饮,其他
  • 建筑高度类型:高层建筑
  • 建筑设计面积:42546.68平方米
  • 建筑地上层数:8层
  • 建筑地下层数:3层
  • 图纸设计深度:施工图
  • 参考图纸:30张
  • 设计年代:近代
  • 设计内容:空调,通风,采暖,防排烟,机房,其它
  • 冷热源:市政热网,电动压缩式冷水机组
  • 空调系统:空气-水系统
  • 采暖系统:散热器供暖,热水辐射
  • 水系统:变流量,双管制,异程式
  • 项目所在地:北京

附件详情

  • 设计及施工说明
  • 主要设备表
  • 正压送风系统原理图
  • 内走道排烟及卫生间排风系统原理图
  • 采暖、空调水系统原理图
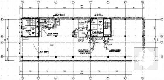
  • 通风、空调、防排烟平面图
  • 通风、防排烟设备平面图
  • 消防泵房采暖平面图
  • 空调水及地板采暖平面图
  • 风机大样图
  • 风机房剖面图
  • 新风机房大样图

附件详情

本建筑具体使用性质包括:A座(东侧)、B座(南侧):首层展厅、二层会议、三层及以上为办公,C座(西侧)首层门厅、二层内部员工餐厅、三层及以上为办公。A座地上八层,B、C座地上十八层,地下共三层,其中地下一层为单层车库、制冷机房、水泵房等设备用房,地下二层为双层车库及为消防泵房,地下三层平时为单层车库,战时为核六级常六级人防物资库。本建筑为一类高层建筑,屋顶完成面标高66.9m;总建筑设计面积:42546.68平方米,其中地上建筑面积为:31689.91平方米;地下建筑面积为:10856.77平方米。室内外高差0.45m。
设计内容:包括采暖、空调、通风、防排烟系统的设计及制冷机房、换热站系统设计。

采暖、空调水系统原理图

地下三层进风机房1-1剖面图

三至八层通风、空调、防排烟平面图

十四至十六层空调水平面图

屋顶通风、防排烟设备平面图

加压送风风机安装详图

第 1 张图
第 1 张图
第 2 张图
第 2 张图
第 3 张图
第 3 张图
第 4 张图
第 4 张图
第 5 张图
第 5 张图
第 6 张图
第 6 张图
以上是部分图纸截图,有些图框没有放大后再截图,可能截图里不清晰或者看不到内容,您可以在下载后查看具体内容

温馨提示:该资料由网友于2020-2-27 12:39:05上传分享,您可以下载该资料进行学习和参考,如有侵权内容或者违法行为,请及时联系站长删除,如有疑问,您可以在暖通空调专区发帖交流相关知识。

附件2099v11ede2e220ecdscd2df00.rar

6.16 MB

下载  售价: 100 积分    赚积分

相关帖子

回复

使用道具 举报

您需要登录后才可以回帖 登录 | 立即注册

本版积分规则

QQ|联系我们|豆豆网 ( 苏ICP备20004746号-1 )

GMT+8, 2025-12-23 02:42 , Processed in 0.018540 second(s), 27 queries .

本站所有内容均由网友自主分享,如有侵权内容或者违法行为,请及时联系站长删除,本站将根据实际情况进行积分奖励!请查看:免责声明

快速回复 返回顶部 返回列表