豆豆网

 找回密码
 立即注册

QQ登录

只需一步,快速开始

查看: 1470|回复: 0

一份上两层汽车4S店电气CAD施工图纸(电气设计说明)

[复制链接]

0

主题

0

帖子

776

积分

超级版主

Rank: 8Rank: 8

积分
776
发表于 2020-2-29 13:20:12 | 显示全部楼层 |阅读模式

该帖子包含附件可供参考学习和下载,您可以 搜索 更多您想要的资源


  • 建筑类别:商业
  • 建筑高度类型:多层建筑
  • 建筑地上层数:2层
  • 参考图纸:8张
  • 设计年代:近代
  • 负荷等级:二级
  • 防雷等级:第三类
  • 接地方式:TN-C-S
  • 强电设计:低压配电,电气照明,建筑物防雷,接地安全

附件详情

  • 一、电气设计说明
  • 二、 配电箱系统
  • 三、 照明平面图
  • 四、 防雷接地 平面图

附件详情

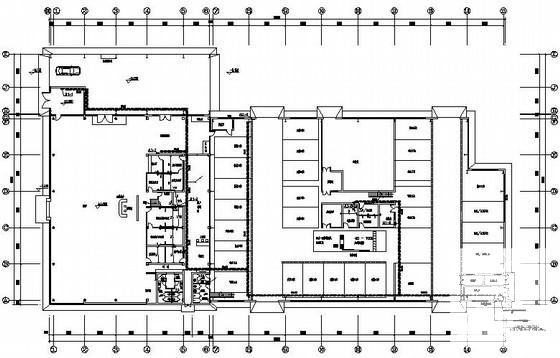
本稿件是某汽车4S店电气图纸,电气设计包含配电设计、照明插座设计、基础接地与屋顶防雷系统。

第 1 张图
第 1 张图
第 2 张图
第 2 张图
第 3 张图
第 3 张图
第 4 张图
第 4 张图
以上是部分图纸截图,有些图框没有放大后再截图,可能截图里不清晰或者看不到内容,您可以在下载后查看具体内容

温馨提示:该资料由网友于2020-2-29 13:20:12上传分享,您可以下载该资料进行学习和参考,如有侵权内容或者违法行为,请及时联系站长删除,如有疑问,您可以在电气工程专区发帖交流相关知识。

附件2099v11edecc00df2wsc02edfc.rar

640.51 KB

下载  售价: 100 积分    赚积分

相关帖子

回复

使用道具 举报

您需要登录后才可以回帖 登录 | 立即注册

本版积分规则

QQ|联系我们|豆豆网 ( 苏ICP备20004746号-1 )

GMT+8, 2025-12-28 03:46 , Processed in 0.015523 second(s), 28 queries .

本站所有内容均由网友自主分享,如有侵权内容或者违法行为,请及时联系站长删除,本站将根据实际情况进行积分奖励!请查看:免责声明

快速回复 返回顶部 返回列表