豆豆网

 找回密码
 立即注册

QQ登录

只需一步,快速开始

查看: 2498|回复: 0

一份8层酒店电气消防系统CAD施工图纸

[复制链接]

0

主题

0

帖子

1577

积分

超级版主

Rank: 8Rank: 8

积分
1577
发表于 2020-2-29 14:30:56 | 显示全部楼层 |阅读模式

该帖子包含附件可供参考学习和下载,您可以 搜索 更多您想要的资源


  • 建筑类别:商业
  • 建筑高度类型:多层建筑
  • 建筑设计面积:17072.76平方米
  • 建筑地上层数:5层
  • 建筑地下层数:3层
  • 图纸设计深度:施工图
  • 参考图纸:9张
  • 设计年代:近代
  • 负荷等级:一级
  • 防雷等级:第三类
  • 火灾保护分级:一级
  • 弱电设计: 火灾自动报警系统 ,广播系统

附件详情

  • 一、消防 电气设计 说明
  • 二、火灾自动报警及联动控制系统图
  • 三、火灾自动报警平面图

附件详情

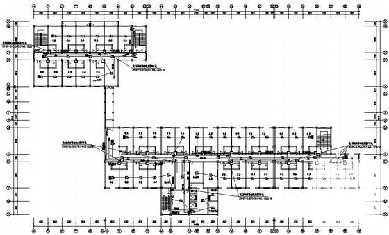
本稿件是酒店电气 消防系统 施工图纸,酒店建筑地上五层,地下三层,三类建筑,工程占地5165.69平方米,总建筑面积17072.76平方米 ,为框混结构,坡屋顶,建筑檐口高度最高为20.000米。电气消防设计包含

酒店消防系统 - 1
第 1 张图
酒店消防系统 - 2
第 2 张图
酒店消防系统 - 3
第 3 张图
酒店消防系统 - 4
第 4 张图
以上是部分图纸截图,有些图框没有放大后再截图,可能截图里不清晰或者看不到内容,您可以在下载后查看具体内容

温馨提示:该资料由网友于2020-2-29 14:30:56上传分享,您可以下载该资料进行学习和参考,如有侵权内容或者违法行为,请及时联系站长删除,如有疑问,您可以在酒店建筑专区发帖交流相关知识。

附件2099v11edecc2c2fww1ddcs021.rar

778.92 KB

下载  售价: 100 积分    赚积分

酒店消防系统相关帖子

回复

使用道具 举报

您需要登录后才可以回帖 登录 | 立即注册

本版积分规则

QQ|联系我们|豆豆网 ( 苏ICP备20004746号-1 )

GMT+8, 2025-12-22 02:04 , Processed in 0.022440 second(s), 28 queries .

本站所有内容均由网友自主分享,如有侵权内容或者违法行为,请及时联系站长删除,本站将根据实际情况进行积分奖励!请查看:免责声明

快速回复 返回顶部 返回列表