豆豆网

 找回密码
 立即注册

QQ登录

只需一步,快速开始

查看: 1621|回复: 0

框排架厂房结构设计方案CAD施工图纸

[复制链接]

0

主题

0

帖子

774

积分

超级版主

Rank: 8Rank: 8

积分
774
发表于 2020-2-29 19:36:37 | 显示全部楼层 |阅读模式

该帖子包含附件可供参考学习和下载,您可以 搜索 更多您想要的资源


  • 建筑类别:工业建筑
  • 建筑高度:多层建筑
  • 设计阶段:施工图设计
  • 民用建筑设计使用年限:50年
  • 建筑设计结构形式:框架结构
  • 结构安全等级:二级
  • 地基基础设计等级:丙级
  • 抗震设防烈度:8度抗震
  • 人防或地下车库:无
  • 参考图纸:20张以下
  • 设计年代:近代

附件详情

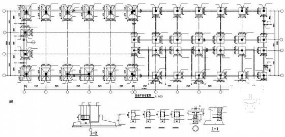
该资料包含:结构设计总说明,基础平面图,基础详图,PZ、KFZ模板图及配筋图,厂房构件布置图、屋架檩条、拉条布置图,排架柱、抗风柱与圈梁、构造柱连接大样图,屋架及上、下弦支撑布置图,梁配筋图,板配筋图,楼梯结构图等
共12张图纸。

排架厂房施工方案 - 1
第 1 张图
排架厂房施工方案 - 2
第 2 张图
排架厂房施工方案 - 3
第 3 张图
排架厂房施工方案 - 4
第 4 张图
以上是部分图纸截图,有些图框没有放大后再截图,可能截图里不清晰或者看不到内容,您可以在下载后查看具体内容

温馨提示:该资料由网友于2020-2-29 19:36:37上传分享,您可以下载该资料进行学习和参考,如有侵权内容或者违法行为,请及时联系站长删除,如有疑问,您可以在结构设计专区发帖交流相关知识。

附件2099v11edf2dc0fcdeccdc22es.rar

594.84 KB

下载  售价: 100 积分    赚积分

排架厂房施工方案相关帖子

回复

使用道具 举报

您需要登录后才可以回帖 登录 | 立即注册

本版积分规则

QQ|联系我们|豆豆网 ( 苏ICP备20004746号-1 )

GMT+8, 2025-11-26 11:35 , Processed in 0.015568 second(s), 27 queries .

本站所有内容均由网友自主分享,如有侵权内容或者违法行为,请及时联系站长删除,本站将根据实际情况进行积分奖励!请查看:免责声明

快速回复 返回顶部 返回列表