豆豆网

 找回密码
 立即注册

QQ登录

只需一步,快速开始

查看: 1924|回复: 0

13层大酒店CAD给排水消防图纸

[复制链接]

0

主题

0

帖子

1075

积分

超级版主

Rank: 8Rank: 8

积分
1075
发表于 2020-3-1 12:52:35 | 显示全部楼层 |阅读模式

该帖子包含附件可供参考学习和下载,您可以 搜索 更多您想要的资源


  • 建筑类别:宾馆酒店
  • 建筑地上层数:13层
  • 建筑地下层数:1层
  • 出图日期:2006
  • 设计阶段:施工图设计
  • 供水方式:市政供水
  • 供水分区:无
  • 设计内容:给排水, 消火栓, 自动喷水
  • 设置场所火灾危险等级:中危险级Ⅰ级

附件详情

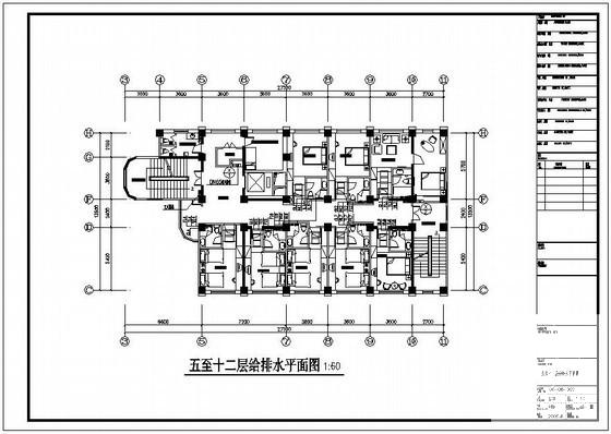
4星酒店给排水图纸,该项目为原有建筑装修工程,建筑为地下一层、地上十三层结构,该资料包含1至13层的给排水消防平面图,喷淋平面图及系统图等等。

给水系统透视图

排水系统透视图

消防喷淋透视图

消防喷淋平面图

第 1 张图
第 1 张图
第 2 张图
第 2 张图
第 3 张图
第 3 张图
第 4 张图
第 4 张图
第 5 张图
第 5 张图
以上是部分图纸截图,有些图框没有放大后再截图,可能截图里不清晰或者看不到内容,您可以在下载后查看具体内容

温馨提示:该资料由网友于2020-3-1 12:52:35上传分享,您可以下载该资料进行学习和参考,如有侵权内容或者违法行为,请及时联系站长删除,如有疑问,您可以在给水排水专区发帖交流相关知识。

附件2099v11edc0eedcdec0dd2e0dc.rar

1.05 MB

下载  售价: 100 积分    赚积分

相关帖子

回复

使用道具 举报

您需要登录后才可以回帖 登录 | 立即注册

本版积分规则

QQ|联系我们|豆豆网 ( 苏ICP备20004746号-1 )

GMT+8, 2025-12-18 23:24 , Processed in 0.063109 second(s), 27 queries .

本站所有内容均由网友自主分享,如有侵权内容或者违法行为,请及时联系站长删除,本站将根据实际情况进行积分奖励!请查看:免责声明

快速回复 返回顶部 返回列表