豆豆网

 找回密码
 立即注册

QQ登录

只需一步,快速开始

查看: 1932|回复: 0

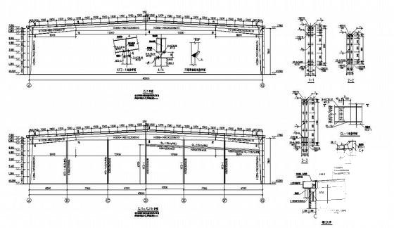
[CAD]跨度40米单层门式刚架厂房结构设计图纸(独立基础)(平面布置图)

[复制链接]

0

主题

0

帖子

1516

积分

超级版主

Rank: 8Rank: 8

积分
1516
发表于 2020-3-1 13:43:32 | 显示全部楼层 |阅读模式

该帖子包含附件可供参考学习和下载,您可以 搜索 更多您想要的资源


  • 建筑类别:工业建筑
  • 厂房建筑高度类型:单层厂房
  • 建筑地上层数:1层
  • 图纸设计深度:施工图
  • 建筑设计结构形式:钢结构
  • 钢结构:门式刚架
  • 基础形式 :独立基础
  • 结构最大跨度:40m
  • 参考图纸:10张
  • 设计年代:近代

附件详情

该资料包含:基础平面布置图,地脚螺栓 平面布置图 ,屋面构件布置图,支撑布置图,钢架详图,屋面檩条布置图, 节点详图
共10张图纸。

第 1 张图
第 1 张图
第 2 张图
第 2 张图
第 3 张图
第 3 张图
第 4 张图
第 4 张图
以上是部分图纸截图,有些图框没有放大后再截图,可能截图里不清晰或者看不到内容,您可以在下载后查看具体内容

温馨提示:该资料由网友于2020-3-1 13:43:32上传分享,您可以下载该资料进行学习和参考,如有侵权内容或者违法行为,请及时联系站长删除,如有疑问,您可以在结构设计专区发帖交流相关知识。

附件2099v11edf2dedwsf1ddcfscds.rar

582.31 KB

下载  售价: 100 积分    赚积分

相关帖子

回复

使用道具 举报

您需要登录后才可以回帖 登录 | 立即注册

本版积分规则

QQ|联系我们|豆豆网 ( 苏ICP备20004746号-1 )

GMT+8, 2025-12-28 21:01 , Processed in 0.014810 second(s), 28 queries .

本站所有内容均由网友自主分享,如有侵权内容或者违法行为,请及时联系站长删除,本站将根据实际情况进行积分奖励!请查看:免责声明

快速回复 返回顶部 返回列表