豆豆网

 找回密码
 立即注册

QQ登录

只需一步,快速开始

查看: 2019|回复: 0

一份10层酒店给排水CAD施工图纸(卫生间大样)

[复制链接]

0

主题

0

帖子

1642

积分

超级版主

Rank: 8Rank: 8

积分
1642
发表于 2020-3-1 14:10:20 | 显示全部楼层 |阅读模式

该帖子包含附件可供参考学习和下载,您可以 搜索 更多您想要的资源


  • 建筑类别:酒店
  • 建筑高度类型:高层建筑
  • 建筑地上层数:10层
  • 建筑地下层数:2层
  • 图纸设计深度:施工图
  • 参考图纸:13张
  • 设计年代:近代
  • 地下室用途:车库
  • 生活供水设计:生活给水系统
  • 生产供水设计:热水系统
  • 排水设计:污水系统, 废水系统, 雨水系统
  • 消防设计:室外消火栓系统, 室内消火栓系统, 喷淋系统, 灭火器配置系统
  • 供水方式:市政供水
  • 排水体制:污废合流, 雨污分流
  • 排水技术:重力排水
  • 大样节点:卫生间
  • 项目所在地:四川

附件详情

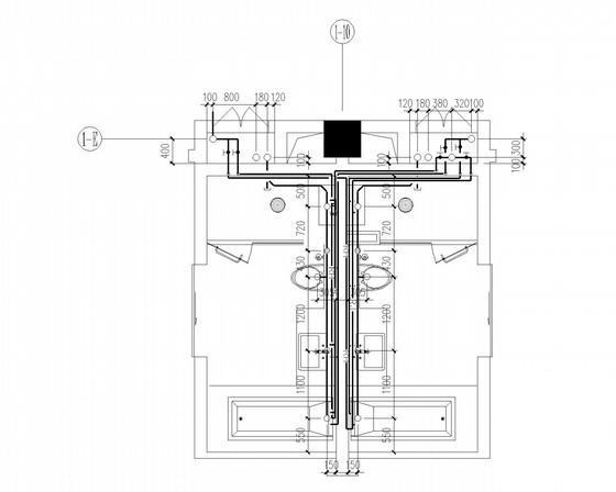
  • 1#楼公共卫生间大样及给排水支管系统图
  • 1#楼客房卫生间大样及给排水支管系统图
  • 1#楼一层喷淋平面图
  • 1#楼二层喷淋平面图
  • 1#楼三层喷淋平面图
  • 1#楼六至九层喷淋平面图
  • 1#楼十层喷淋平面图
  • 2#楼一层喷淋平面图
  • 2#楼二层喷淋平面图
  • 2#楼四层喷淋平面图
  • 2#楼五层喷淋平面图
  • 地下二层喷淋平面图
  • 地下一层喷淋平面图

附件详情

该资料为四川某高层酒店给排水施工图。
项目概要:该项目一共有两栋建筑,为1#和2#。建筑地上部分为十层,地下部分为二层,为高层建筑,建筑类别为酒店。设计内容主要包括给水系统、排水系统、 消防系统 、自动喷淋系统等。
,公共13张图。


1#楼一层喷淋平面图

2#楼一层喷淋平面图

1#楼客房卫生间大样及给排水支管系统图

酒店卫生间排水 - 1
第 1 张图
酒店卫生间排水 - 2
第 2 张图
酒店卫生间排水 - 3
第 3 张图
酒店卫生间排水 - 4
第 4 张图
以上是部分图纸截图,有些图框没有放大后再截图,可能截图里不清晰或者看不到内容,您可以在下载后查看具体内容

温馨提示:该资料由网友于2020-3-1 14:10:20上传分享,您可以下载该资料进行学习和参考,如有侵权内容或者违法行为,请及时联系站长删除,如有疑问,您可以在给水排水专区发帖交流相关知识。

附件2099v11edc0dccccsfw2ccde1f.rar

5.48 MB

下载  售价: 100 积分    赚积分

酒店卫生间排水相关帖子

回复

使用道具 举报

您需要登录后才可以回帖 登录 | 立即注册

本版积分规则

QQ|联系我们|豆豆网 ( 苏ICP备20004746号-1 )

GMT+8, 2025-12-28 19:22 , Processed in 0.014932 second(s), 27 queries .

本站所有内容均由网友自主分享,如有侵权内容或者违法行为,请及时联系站长删除,本站将根据实际情况进行积分奖励!请查看:免责声明

快速回复 返回顶部 返回列表