豆豆网

 找回密码
 立即注册

QQ登录

只需一步,快速开始

查看: 1481|回复: 0

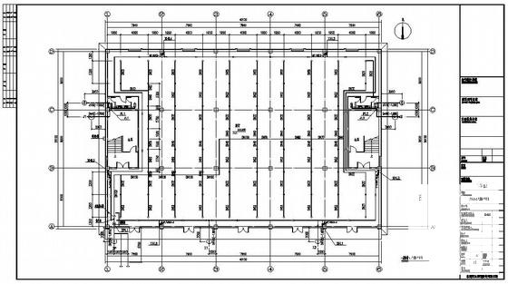
批发市场3层展厅给排水CAD施工图纸

[复制链接]

0

主题

0

帖子

625

积分

超级版主

Rank: 8Rank: 8

积分
625
发表于 2020-3-1 15:32:57 | 显示全部楼层 |阅读模式

该帖子包含附件可供参考学习和下载,您可以 搜索 更多您想要的资源


  • 建筑类别:商业
  • 建筑地上层数:3层
  • 出图日期:2009
  • 建筑设计面积:3143.79平方米
  • 供水方式:市政供水
  • 供水分区:无
  • 设计内容:给排水,消火栓,自动喷水

附件详情

该项目为批发市场有限公司展厅,共三层,一层为4.2m,二层为3.9m,三层为3.3m,总高为11.40m,建筑面积为3143.79平方米,建筑体积约为14755立方.该项目设有生活给水系统、生活污水系统、消防给水、自动喷淋系统、固定灭火系统生活给水系统:

批发市场给排水 - 1
第 1 张图
批发市场给排水 - 2
第 2 张图
批发市场给排水 - 3
第 3 张图
批发市场给排水 - 4
第 4 张图
以上是部分图纸截图,有些图框没有放大后再截图,可能截图里不清晰或者看不到内容,您可以在下载后查看具体内容

温馨提示:该资料由网友于2020-3-1 15:32:57上传分享,您可以下载该资料进行学习和参考,如有侵权内容或者违法行为,请及时联系站长删除,如有疑问,您可以在给水排水专区发帖交流相关知识。

附件2099v11edc0c0cesecs20ccd10.rar

251.8 KB

下载  售价: 100 积分    赚积分

批发市场给排水相关帖子

回复

使用道具 举报

您需要登录后才可以回帖 登录 | 立即注册

本版积分规则

QQ|联系我们|豆豆网 ( 苏ICP备20004746号-1 )

GMT+8, 2025-11-19 00:32 , Processed in 0.017690 second(s), 28 queries .

本站所有内容均由网友自主分享,如有侵权内容或者违法行为,请及时联系站长删除,本站将根据实际情况进行积分奖励!请查看:免责声明

快速回复 返回顶部 返回列表