豆豆网

 找回密码
 立即注册

QQ登录

只需一步,快速开始

查看: 1579|回复: 0

一份22层大型复杂综合楼给排水消防CAD施工图纸

[复制链接]

0

主题

0

帖子

1322

积分

超级版主

Rank: 8Rank: 8

积分
1322
发表于 2020-3-2 20:37:27 | 显示全部楼层 |阅读模式

该帖子包含附件可供参考学习和下载,您可以 搜索 更多您想要的资源


  • 附件设计说明:有
  • 建筑类别:办公,酒店
  • 建筑高度类型:多层建筑
  • 建筑地上层数:22层
  • 建筑地下层数:2层
  • 图纸设计深度:施工图
  • 参考图纸:44张
  • 地下室用途:车库,设备用房
  • 生活供水设计:生活给水系统
  • 消防设计:室内消火栓系统,喷淋系统,气体灭火系统,灭火器配置系统
  • 供水设备:高位水箱
  • 供水方式:市政供水,高位水箱供水,无负压供水
  • 供水分区:两区
  • 排水体制:污废分流
  • 排水技术:重力排水
  • 火灾危险等级:中危险级Ⅰ级,中危险级Ⅱ级
  • 消火栓用水量室外(L/S):30
  • 消火栓用水量室内(L/S):40
  • 特殊系统:气体消防
  • 大样节点:泵房,卫生间
  • 热水供应方式:集中热水供应
  • 项目所在地:湖南

附件详情

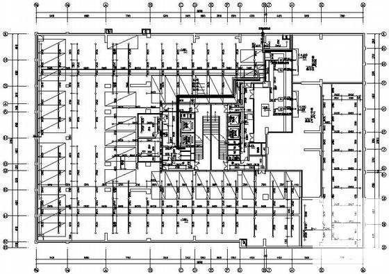
  • 地下二层~二十二层喷淋 平面布置图
  • 地下二层~二十二层给排水平面图
  • 给水系统图
  • 排水系统图
  • 十一层、十七层热回水平面图
  • 楼梯间、构架给排水平面图
  • 热水原理图
  • 喷淋原理图

附件详情

本稿件为[湖南]高层大型复杂综合楼给排水消防施工图纸,设计范围包括:给水排水和消防管道设计。
共44张图纸。

二十二层给排水平面图

水池、水泵房平面布置图

排水系统图

第 1 张图
第 1 张图
第 2 张图
第 2 张图
第 3 张图
第 3 张图
第 4 张图
第 4 张图
以上是部分图纸截图,有些图框没有放大后再截图,可能截图里不清晰或者看不到内容,您可以在下载后查看具体内容

温馨提示:该资料由网友于2020-3-2 20:37:27上传分享,您可以下载该资料进行学习和参考,如有侵权内容或者违法行为,请及时联系站长删除,如有疑问,您可以在给水排水专区发帖交流相关知识。

附件2099v11edc0f2dcdscw0deecdc.rar

2.77 MB

下载  售价: 100 积分    赚积分

相关帖子

回复

使用道具 举报

您需要登录后才可以回帖 登录 | 立即注册

本版积分规则

QQ|联系我们|豆豆网 ( 苏ICP备20004746号-1 )

GMT+8, 2025-12-18 20:33 , Processed in 0.017320 second(s), 27 queries .

本站所有内容均由网友自主分享,如有侵权内容或者违法行为,请及时联系站长删除,本站将根据实际情况进行积分奖励!请查看:免责声明

快速回复 返回顶部 返回列表