豆豆网

 找回密码
 立即注册

QQ登录

只需一步,快速开始

查看: 2305|回复: 0

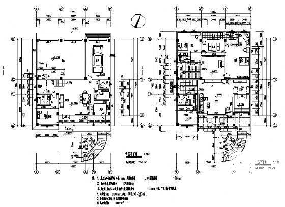
[卫生间详图]4层别墅式私宅建筑施工CAD图纸(砌体结构)

[复制链接]

0

主题

0

帖子

1352

积分

超级版主

Rank: 8Rank: 8

积分
1352
发表于 2020-1-27 20:41:56 | 显示全部楼层 |阅读模式

该帖子包含附件可供参考学习和下载,您可以 搜索 更多您想要的资源


  • 别墅设计类别: 独栋别墅
  • 建筑高度类型:多层建筑
  • 建筑设计结构形式:砌体结构
  • 图纸设计深度:施工图
  • 图纸设计风格:欧陆风格
  • 图纸设计流派:新古典
  • 图纸设计格式:天正建筑CAD 7.0,CAD2000
  • 参考图纸:20张
  • 建筑设计面积:888.6平方米
  • 建筑高度:16.0m
  • 地上层数:4层
  • 设计效果图:无

附件详情

该资料为某四层别墅式私宅 建筑施工
工程建筑面积约为:888.6平方米、建筑设计结构形式为:砖混结构、层数为: 4层、高度为: 16.0米
这份参考资料包括资料目录、图纸说明、工程作法、门窗表、各层建筑平面、立面、剖面图、卫生间详图、楼梯间详图、墙身大样、檐口作法等,共20张图纸

第 1 张图
第 1 张图
第 2 张图
第 2 张图
第 3 张图
第 3 张图
第 4 张图
第 4 张图
以上是部分图纸截图,有些图框没有放大后再截图,可能截图里不清晰或者看不到内容,您可以在下载后查看具体内容

温馨提示:该资料由网友于2020-1-27 20:41:56上传分享,您可以下载该资料进行学习和参考,如有侵权内容或者违法行为,请及时联系站长删除,如有疑问,您可以在别墅建筑专区发帖交流相关知识。

附件2099v11ed1wc2c12ewwssc0c0d.rar

1.08 MB

下载  售价: 100 积分    赚积分

相关帖子

回复

使用道具 举报

您需要登录后才可以回帖 登录 | 立即注册

本版积分规则

QQ|联系我们|豆豆网 ( 苏ICP备20004746号-1 )

GMT+8, 2025-12-29 04:23 , Processed in 0.015273 second(s), 27 queries .

本站所有内容均由网友自主分享,如有侵权内容或者违法行为,请及时联系站长删除,本站将根据实际情况进行积分奖励!请查看:免责声明

快速回复 返回顶部 返回列表