豆豆网

 找回密码
 立即注册

QQ登录

只需一步,快速开始

查看: 1740|回复: 0

一份8度抗震剪力墙结构外滩住宅结构设计CAD施工图纸(预制桩)

[复制链接]

0

主题

0

帖子

1350

积分

超级版主

Rank: 8Rank: 8

积分
1350
发表于 2020-3-3 20:10:11 | 显示全部楼层 |阅读模式

该帖子包含附件可供参考学习和下载,您可以 搜索 更多您想要的资源


  • 建筑类别:住宅
  • 建筑高度类型:多层建筑
  • 图纸设计深度:施工图
  • 民用建筑设计使用年限:50年
  • 建筑设计结构形式:钢筋混凝土结构
  • 钢筋混凝土结构:剪力墙
  • 基础形式 :桩基础
  • 结构安全等级:二级
  • 地基基础设计等级:丙级
  • 抗震设防烈度:8度抗震
  • 风压:0.75kN/平方米
  • 参考图纸:20张

附件详情

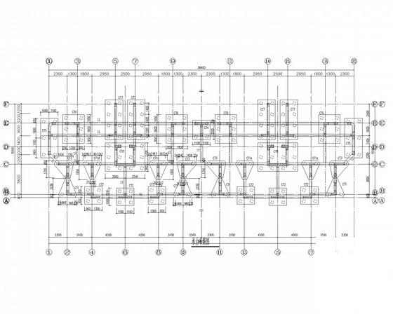
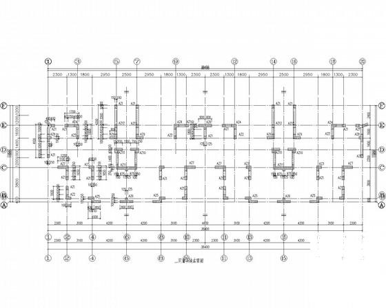
结构总说明、桩位布置图、承台布置图、承台详图、架空层剪力墙布置图、剪力墙布置图、平面梁钢筋图、屋顶层平面梁钢筋图、屋顶层平面板钢筋图、斜屋面和花架施工图、水箱和楼梯部分剪力墙布置图、楼梯施工图共20张图纸。

承台布置图

剪力墙布置图

平面梁钢筋图

屋顶层花架板钢筋图

平面板钢筋图

预制桩施工 - 1
第 1 张图
预制桩施工 - 2
第 2 张图
预制桩施工 - 3
第 3 张图
预制桩施工 - 4
第 4 张图
预制桩施工 - 5
第 5 张图
预制桩施工 - 6
第 6 张图
以上是部分图纸截图,有些图框没有放大后再截图,可能截图里不清晰或者看不到内容,您可以在下载后查看具体内容

温馨提示:该资料由网友于2020-3-3 20:10:11上传分享,您可以下载该资料进行学习和参考,如有侵权内容或者违法行为,请及时联系站长删除,如有疑问,您可以在居住建筑专区发帖交流相关知识。

附件2099v11edfcc1e1cfwcees0c2s.zip

1.8 MB

下载  售价: 100 积分    赚积分

预制桩施工相关帖子

回复

使用道具 举报

您需要登录后才可以回帖 登录 | 立即注册

本版积分规则

QQ|联系我们|豆豆网 ( 苏ICP备20004746号-1 )

GMT+8, 2025-11-22 00:09 , Processed in 0.016599 second(s), 27 queries .

本站所有内容均由网友自主分享,如有侵权内容或者违法行为,请及时联系站长删除,本站将根据实际情况进行积分奖励!请查看:免责声明

快速回复 返回顶部 返回列表