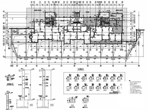
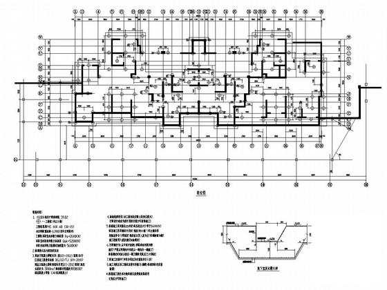
地上34层抗震剪力墙结构住宅楼结构施工CAD图纸
- 发布时间:2021-05-08
- 评论次数:0
- 浏览次数:0
- 文件大小:9.7 MB
- 收藏次数:0
- 
								文件名称: 附件-995887695779879075775.zip 附件-995887695779879075775.zip
								剪力墙结构抗震下载
							
						- 地上18 2层剪力墙结构住宅楼结构CAD施工图纸(dwg)(6度抗震)
- 地上14层框架抗震墙结构住宅楼结构施工CAD图纸
- 地上32层抗震墙结构住宅楼结构施工CAD图纸
- 地上8层混凝土抗震墙结构住宅楼结构施工CAD图纸
- 地上33层剪力墙结构住宅楼结构CAD施工图纸(仅地上部分)(7度抗震).dwg
- 地上25层剪力墙结构住宅楼结构CAD施工图纸
- 地上18层框架剪力墙结构住宅楼结构CAD施工图纸
- 地上25层剪力墙结构住宅楼结构CAD施工图纸
- 地上30层剪力墙结构住宅楼结构CAD施工图纸
- 地上33层剪力墙结构高层住宅楼结构施工CAD图纸
- 地上27层剪力墙结构住宅楼结构施工CAD图纸
- 地上21层剪力墙结构住宅楼结构施工CAD图纸
- 地上24层剪力墙结构住宅楼结构施工CAD图纸
- 27层剪力墙结构住宅楼地上部分结构施工CAD图纸
- 地上7层短肢剪力墙结构住宅楼结构施工CAD图纸
- 地上6+1层剪力墙结构住宅楼结构施工CAD图纸
- 地上18层框架剪力墙结构住宅楼结构施工CAD图纸
- 地上14层框架剪力墙结构住宅楼结构施工CAD图纸
- 地上22层剪力墙结构住宅楼结构施工CAD图纸
- 18层剪力墙结构住宅楼地上部分结构施工CAD图纸
全部评论
						
							评论网友评论仅友表达个人看法,并不表明本站同意其观点,不得发布违反法律法规的内容!
						
						
 
	              	 
	              	 
	              	 
	              	 
	              	