豆豆网

 找回密码
 立即注册

QQ登录

只需一步,快速开始

查看: 760|回复: 0

一份地下3层板柱结构地下车库结构CAD施工图纸(无粘结预应力)

[复制链接]

0

主题

0

帖子

1390

积分

超级版主

Rank: 8Rank: 8

积分
1390
发表于 2020-3-3 21:00:36 | 显示全部楼层 |阅读模式

该帖子包含附件可供参考学习和下载,您可以 搜索 更多您想要的资源


  • 建筑类别:交通建筑
  • 建筑高度类型:多层建筑
  • 建筑地下层数:3层
  • 图纸设计深度:施工图
  • 民用建筑设计使用年限:50年
  • 建筑设计结构形式:其他结构
  • 基础形式 :独立基础, 桩基础
  • 结构安全等级:二级
  • 抗震设防烈度:6度抗震
  • 风压:0.40kN/平方米
  • 地下室功能:车库
  • 参考图纸:18张

附件详情

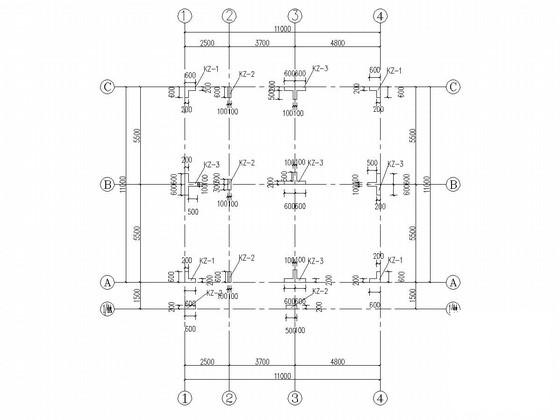
该项目为地下三层预应力无梁楼盖的地下车库,本建筑建筑设计结构形式为板柱结构,采用无粘结预应力混凝土技术,基础采用独立基础和桩基,6度设防。
该资料包含:结构设计总说明、无粘结预应力 结构设计说明 、基础平面布置图、柱 平面布置图 、预应力配筋图、非预应力配筋图等共18张图纸。

车库负二层预应力配筋图

车库负二层非预应力配筋图

基础大样图

板柱结构施工图 - 1
第 1 张图
板柱结构施工图 - 2
第 2 张图
板柱结构施工图 - 3
第 3 张图
板柱结构施工图 - 4
第 4 张图
以上是部分图纸截图,有些图框没有放大后再截图,可能截图里不清晰或者看不到内容,您可以在下载后查看具体内容

温馨提示:该资料由网友于2020-3-3 21:00:36上传分享,您可以下载该资料进行学习和参考,如有侵权内容或者违法行为,请及时联系站长删除,如有疑问,您可以在建筑施工专区发帖交流相关知识。

附件2099v11edfcfw2fsc2f0dsf10e.rar

2.47 MB

下载  售价: 100 积分    赚积分

板柱结构施工图相关帖子

回复

使用道具 举报

您需要登录后才可以回帖 登录 | 立即注册

本版积分规则

QQ|联系我们|豆豆网 ( 苏ICP备20004746号-1 )

GMT+8, 2025-12-28 05:48 , Processed in 0.015163 second(s), 27 queries .

本站所有内容均由网友自主分享,如有侵权内容或者违法行为,请及时联系站长删除,本站将根据实际情况进行积分奖励!请查看:免责声明

快速回复 返回顶部 返回列表