豆豆网

 找回密码
 立即注册

QQ登录

只需一步,快速开始

查看: 1303|回复: 0

一份6层带阁楼坡屋面异形柱框架结构住宅楼CAD施工图纸

[复制链接]

0

主题

0

帖子

1832

积分

超级版主

Rank: 8Rank: 8

积分
1832
发表于 2020-3-4 10:34:07 | 显示全部楼层 |阅读模式

该帖子包含附件可供参考学习和下载,您可以 搜索 更多您想要的资源


  • 建筑类别:住宅

  • 建筑高度类型:多层建筑

  • 建筑地上层数:6层

  • 建筑地下层数:1层

  • 图纸设计深度:施工图

  • 民用建筑设计使用年限:50年

  • 建筑设计结构形式:钢筋混凝土结构

  • 钢筋混凝土结构:框架

  • 基础形式 :混凝土基础,独立基础

  • 结构安全等级:二级

  • 抗震设防烈度:7度抗震

  • 风压:0.4kN/平方米

  • 雪压:0.4kN/平方米

  • 地下室功能:车库

  • 参考图纸:29张

6层带阁楼坡屋面异形柱框架结构住宅楼建筑结构施工图

项目概要:

1. 该项目为月季花园小区C1号住宅楼,该工程位于月季花园小区内.该项目总建筑面积4145平方米.建筑高度为18.30米.2. 该项目耐火等级为二级,屋面防水等级为 3级,建筑使用年限50年.3. 该项目为六层异型柱框架结构,抗震设防烈度为7度.

图纸简介:

6层带阁楼坡屋面异形柱框架结构住宅楼建筑结构施工图,包括了五层梁配筋平面图、六层梁配筋平面图、阁楼层梁配筋平面图、坡屋面梁配筋平面图、地下室底板结构平面图、柱平法施工图、基础结构平面图等,共29张,图纸齐全,可供参考。

阁楼结构平面图


梁平法施工图

建筑立面图

三层建筑立面图

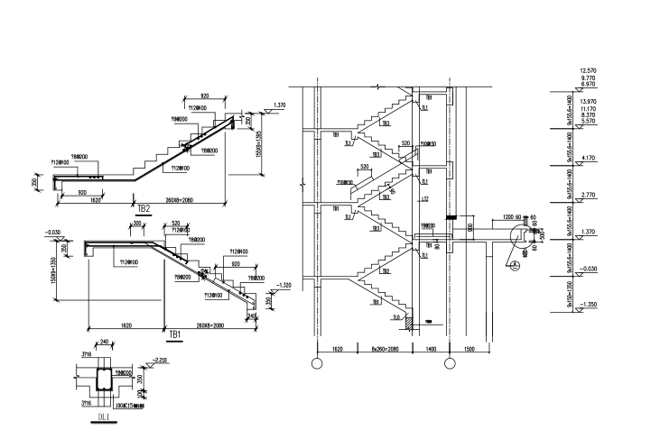
楼梯结构详图



坡屋面阁楼 - 1
第 1 张图
坡屋面阁楼 - 2
第 2 张图
坡屋面阁楼 - 3
第 3 张图
坡屋面阁楼 - 4
第 4 张图
坡屋面阁楼 - 5
第 5 张图
以上是部分图纸截图,有些图框没有放大后再截图,可能截图里不清晰或者看不到内容,您可以在下载后查看具体内容

温馨提示:该资料由网友于2020-3-4 10:34:07上传分享,您可以下载该资料进行学习和参考,如有侵权内容或者违法行为,请及时联系站长删除,如有疑问,您可以在居住建筑专区发帖交流相关知识。

附件2099v11edfc1w2c1s2ce01d2c1.dwg

4.07 MB

下载  售价: 100 积分    赚积分

坡屋面阁楼相关帖子

回复

使用道具 举报

您需要登录后才可以回帖 登录 | 立即注册

本版积分规则

QQ|联系我们|豆豆网 ( 苏ICP备20004746号-1 )

GMT+8, 2025-12-26 19:27 , Processed in 0.031364 second(s), 27 queries .

本站所有内容均由网友自主分享,如有侵权内容或者违法行为,请及时联系站长删除,本站将根据实际情况进行积分奖励!请查看:免责声明

快速回复 返回顶部 返回列表