豆豆网

 找回密码
 立即注册

QQ登录

只需一步,快速开始

查看: 520|回复: 0

一份4层中学教学楼建筑CAD施工图纸

[复制链接]

0

主题

0

帖子

629

积分

超级版主

Rank: 8Rank: 8

积分
629
发表于 2020-3-5 16:39:22 | 显示全部楼层 |阅读模式

该帖子包含附件可供参考学习和下载,您可以 搜索 更多您想要的资源


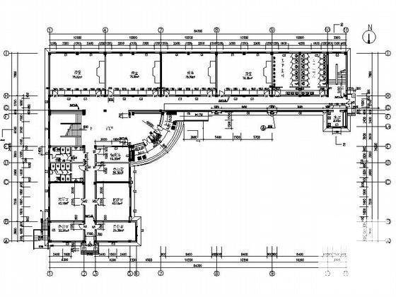
  • 图纸设计深度:施工图
  • 建筑高度:15.9米
  • 建筑层数:4
  • 参考图纸:13张

附件详情

功能:教室、办公、机房

该资料包含:资料目录、设计说明、总平面图、1-4层平面图、屋面平面图、立面图、剖面图、主楼梯平面图, 节点详图 、辅楼梯平面图, 节点详图 、门窗表
参考图纸:13张CAD


剖面

平面

第 1 张图
第 1 张图
第 2 张图
第 2 张图
第 3 张图
第 3 张图
第 4 张图
第 4 张图
以上是部分图纸截图,有些图框没有放大后再截图,可能截图里不清晰或者看不到内容,您可以在下载后查看具体内容

温馨提示:该资料由网友于2020-3-5 16:39:22上传分享,您可以下载该资料进行学习和参考,如有侵权内容或者违法行为,请及时联系站长删除,如有疑问,您可以在建筑施工专区发帖交流相关知识。

附件2099v11eddcf1w00ddsc0efdff.rar

2.3 MB

下载  售价: 100 积分    赚积分

相关帖子

回复

使用道具 举报

您需要登录后才可以回帖 登录 | 立即注册

本版积分规则

QQ|联系我们|豆豆网 ( 苏ICP备20004746号-1 )

GMT+8, 2025-12-28 22:17 , Processed in 0.014984 second(s), 28 queries .

本站所有内容均由网友自主分享,如有侵权内容或者违法行为,请及时联系站长删除,本站将根据实际情况进行积分奖励!请查看:免责声明

快速回复 返回顶部 返回列表