豆豆网

 找回密码
 立即注册

QQ登录

只需一步,快速开始

查看: 1321|回复: 0

一份7层砖混结构住宅楼建筑结构CAD施工图纸(最新出图纸)

[复制链接]

0

主题

0

帖子

1734

积分

超级版主

Rank: 8Rank: 8

积分
1734
发表于 2020-3-6 10:05:15 | 显示全部楼层 |阅读模式

该帖子包含附件可供参考学习和下载,您可以 搜索 更多您想要的资源


  • 建筑类别:住宅
  • 建筑高度类型:多层建筑
  • 建筑地上层数:7层
  • 图纸设计深度:施工图
  • 民用建筑设计使用年限:50年
  • 建筑设计结构形式:砌体结构
  • 基础形式 :桩基础
  • 结构安全等级:二级
  • 地基基础设计等级:丙级
  • 抗震设防烈度:6度抗震
  • 风压:0.45kN/平方米
  • 雪压:0.45kN/平方米
  • 参考图纸:36张
  • 设计年代:近代

附件详情

该项目是河南砖混结构住宅楼项目,主体地上7层,建筑建筑设计结构形式为砖混结构。住宅层高均为2.9米,总建筑面积为2251.07平方米,建筑占地面积为339.72平方米,采用预应力混 凝土空心方桩进行桩基设计,基础设计等级为丙级,抗震设防烈度为6度。
结构专业该资料包含:结构设计总说明,预应力混凝土空心方桩桩位平面布置图,基础平面布置图,结构 平面布置图 ,节点详图, 楼梯详图 ,共计12张图。
建筑专业该资料包含:建筑设计说明,平面图,立面图,剖面图,户型大样图,门窗表、门窗详图,节点详图,楼梯详图等共计24张图。
分享投稿时间:近几年8月。

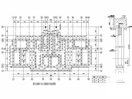
预应力混凝土空心方桩桩位平面布置图

三~七层结构平面布置图

四~七层平面图

门头详图

节点详图

第 1 张图
第 1 张图
第 2 张图
第 2 张图
第 3 张图
第 3 张图
第 4 张图
第 4 张图
第 5 张图
第 5 张图
第 6 张图
第 6 张图
以上是部分图纸截图,有些图框没有放大后再截图,可能截图里不清晰或者看不到内容,您可以在下载后查看具体内容

温馨提示:该资料由网友于2020-3-6 10:05:15上传分享,您可以下载该资料进行学习和参考,如有侵权内容或者违法行为,请及时联系站长删除,如有疑问,您可以在居住建筑专区发帖交流相关知识。

附件2099v11edfw1cwc0f22c0es1se.rar

2.1 MB

下载  售价: 100 积分    赚积分

相关帖子

回复

使用道具 举报

您需要登录后才可以回帖 登录 | 立即注册

本版积分规则

QQ|联系我们|豆豆网 ( 苏ICP备20004746号-1 )

GMT+8, 2025-11-17 08:08 , Processed in 0.015385 second(s), 27 queries .

本站所有内容均由网友自主分享,如有侵权内容或者违法行为,请及时联系站长删除,本站将根据实际情况进行积分奖励!请查看:免责声明

快速回复 返回顶部 返回列表