豆豆网

 找回密码
 立即注册

QQ登录

只需一步,快速开始

查看: 2803|回复: 0

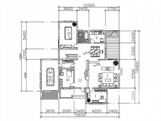
2层休闲别墅建筑方案设计CAD图纸(245平方米、南入口)

[复制链接]

0

主题

0

帖子

1595

积分

超级版主

Rank: 8Rank: 8

积分
1595
发表于 2020-1-21 22:07:04 | 显示全部楼层 |阅读模式

该帖子包含附件可供参考学习和下载,您可以 搜索 更多您想要的资源


  • 建筑类型: 独栋别墅
  • 建筑高度:多层建筑
  • 图纸设计深度 :方案(初设图)
  • 图纸设计风格:欧陆风格
  • 图纸设计流派:新古典
  • 图纸设计格式:天正建筑CAD 7.0,CAD2000
  • 参考图纸:1张
  • 建筑面积:245.9平方米
  • 地上层数:2层
  • 效果图:无

附件详情

总开间x进深:12x13.8米
总建筑面积:245.9平方米

资料包含:各层平面图、立面图
参考资料:1张CAD


别墅入口设计 - 1
第 1 张图
别墅入口设计 - 2
第 2 张图
别墅入口设计 - 3
第 3 张图
别墅入口设计 - 4
第 4 张图
以上是部分图纸截图,有些图框没有放大后再截图,可能截图里不清晰或者看不到内容,您可以在下载后查看具体内容

温馨提示:该资料由网友于2020-1-21 22:07:04上传分享,您可以下载该资料进行学习和参考,如有侵权内容或者违法行为,请及时联系站长删除,如有疑问,您可以在方案设计专区发帖交流相关知识。

附件2099v11ed1dccwcs0d1se0fc11.rar

231.5 KB

下载  售价: 100 积分    赚积分

别墅入口设计相关帖子

回复

使用道具 举报

您需要登录后才可以回帖 登录 | 立即注册

本版积分规则

QQ|联系我们|豆豆网 ( 苏ICP备20004746号-1 )

GMT+8, 2025-12-13 20:06 , Processed in 0.015948 second(s), 27 queries .

本站所有内容均由网友自主分享,如有侵权内容或者违法行为,请及时联系站长删除,本站将根据实际情况进行积分奖励!请查看:免责声明

快速回复 返回顶部 返回列表