豆豆网

 找回密码
 立即注册

QQ登录

只需一步,快速开始

查看: 717|回复: 0

一份4层钢筋混凝土结构民兵训练基地暨党校建设配电及照明系统CAD施工图纸

[复制链接]

0

主题

0

帖子

1575

积分

超级版主

Rank: 8Rank: 8

积分
1575
发表于 2020-3-13 13:48:24 | 显示全部楼层 |阅读模式

该帖子包含附件可供参考学习和下载,您可以 搜索 更多您想要的资源


  • 建筑类别:教育
  • 建筑设计结构形式:钢筋混凝土结构
  • 建筑地上层数:4层
  • 图纸设计深度:施工图
  • 参考图纸:17张
  • 设计年代:近代
  • 地下室用途:人防
  • 节点大样:人防
  • 防雷等级:第三类
  • 接地方式:TN-S
  • 项目所在地:浙江
  • 强电设计: 供配电系统 ,电气照明,其它

附件详情

  • 电气设计说明
  • 配电系统图1
  • 配电系统图2
  • 配电系统图3
  • 一层插座平面图
  • 二层插座平面图
  • 三层插座平面图
  • 四层插座平面图
  • 一层 照明平面图
  • 二层照明平面图
  • 三层照明平面图
  • 四层照明平面图
  • 一层应急照明平面图
  • 二层应急照明平面图
  • 三层应急照明平面图
  • 四层应急照明平面图

附件详情

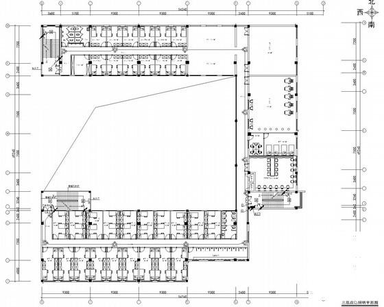
该项目为浙江省民兵训练基地暨党校建设(装修设计),设于地上一~四层,建筑耐火等级为二级。设计范围:1)配电系统;2) 照明系统 。,图纸共17张。




一层插座平面图

三层应急照明平面图

配电系统图

党校施工图 - 1
第 1 张图
党校施工图 - 2
第 2 张图
党校施工图 - 3
第 3 张图
党校施工图 - 4
第 4 张图
以上是部分图纸截图,有些图框没有放大后再截图,可能截图里不清晰或者看不到内容,您可以在下载后查看具体内容

温馨提示:该资料由网友于2020-3-13 13:48:24上传分享,您可以下载该资料进行学习和参考,如有侵权内容或者违法行为,请及时联系站长删除,如有疑问,您可以在建筑施工专区发帖交流相关知识。

附件2099v11edec011f201sd021ec2.rar

2.25 MB

下载  售价: 100 积分    赚积分

党校施工图相关帖子

回复

使用道具 举报

您需要登录后才可以回帖 登录 | 立即注册

本版积分规则

QQ|联系我们|豆豆网 ( 苏ICP备20004746号-1 )

GMT+8, 2025-11-22 16:28 , Processed in 0.053998 second(s), 27 queries .

本站所有内容均由网友自主分享,如有侵权内容或者违法行为,请及时联系站长删除,本站将根据实际情况进行积分奖励!请查看:免责声明

快速回复 返回顶部 返回列表