豆豆网

 找回密码
 立即注册

QQ登录

只需一步,快速开始

查看: 862|回复: 0

[CAD]6层食品药品检测中心大楼建筑施工套图纸(钢筋混凝土结构节能型建筑)

[复制链接]

0

主题

0

帖子

1384

积分

超级版主

Rank: 8Rank: 8

积分
1384
发表于 2020-1-30 22:36:15 | 显示全部楼层 |阅读模式

该帖子包含附件可供参考学习和下载,您可以 搜索 更多您想要的资源


  • 办公楼类型:企业办公楼
  • 建筑高度类型:多层建筑
  • 建筑设计结构形式:钢筋混凝土结构
  • 图纸设计深度:施工图
  • 项目所在地:广东
  • 图纸设计风格:现代风格
  • 图纸设计流派:现代
  • 图纸设计格式:天正建筑CAD 7.0,CAD2000
  • 建筑高度:23.55m
  • 地上层数:6层
  • 地下层数:1层
  • 设计效果图:无

附件详情

[河源市]某六层食品药品检测中心大楼 建筑施工 套图

建筑名称:市食品药品检测中心
建筑地点:广东省 河源市
建设单位:市食品药品监督管理局
建筑耐久年限:三类(50)
建筑类别:二类
耐火等级:一级
抗震设防烈度:6度
屋面防水等级:2级
主要结构选型:钢筋混凝土结构
建筑层数:地上6层,半地下:1层
建筑总面积:3633m2
设计标高:57.40米
建筑总高:23.55m


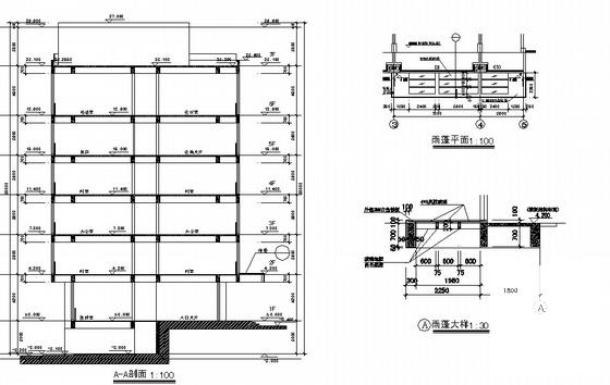
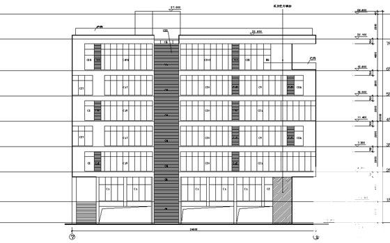
侧立面图

背立面图

三层平面图

钢筋混凝土结构检测 - 1
第 1 张图
钢筋混凝土结构检测 - 2
第 2 张图
钢筋混凝土结构检测 - 3
第 3 张图
钢筋混凝土结构检测 - 4
第 4 张图
钢筋混凝土结构检测 - 5
第 5 张图
以上是部分图纸截图,有些图框没有放大后再截图,可能截图里不清晰或者看不到内容,您可以在下载后查看具体内容

温馨提示:该资料由网友于2020-1-30 22:36:15上传分享,您可以下载该资料进行学习和参考,如有侵权内容或者违法行为,请及时联系站长删除,如有疑问,您可以在建筑施工专区发帖交流相关知识。

附件2099v11eds0ces2s0dscdd0cdc.rar

7.05 MB

下载  售价: 100 积分    赚积分

钢筋混凝土结构检测相关帖子

回复

使用道具 举报

您需要登录后才可以回帖 登录 | 立即注册

本版积分规则

QQ|联系我们|豆豆网 ( 苏ICP备20004746号-1 )

GMT+8, 2025-12-28 01:14 , Processed in 0.016560 second(s), 28 queries .

本站所有内容均由网友自主分享,如有侵权内容或者违法行为,请及时联系站长删除,本站将根据实际情况进行积分奖励!请查看:免责声明

快速回复 返回顶部 返回列表