豆豆网

 找回密码
 立即注册

QQ登录

只需一步,快速开始

查看: 2528|回复: 0

大型多层商场建筑设计CAD施工图纸(dwg格式)

[复制链接]

0

主题

0

帖子

1642

积分

超级版主

Rank: 8Rank: 8

积分
1642
发表于 2020-2-1 11:16:56 | 显示全部楼层 |阅读模式

该帖子包含附件可供参考学习和下载,您可以 搜索 更多您想要的资源


  • 建筑高度类型:多层建筑

  • 外立面材料:幕墙

  • 幕墙面板材料:金属幕墙,人造板幕墙

  • 建筑设计结构形式:钢筋混凝土结构

  • 钢筋混凝土结构:框架

  • 图纸设计深度:方案(初设图),扩初图,施工图

  • 图纸设计风格:现代风格

  • 图纸设计流派:现代

  • 图纸设计格式:天正建筑CAD 7.0,CAD2000

  • 参考图纸:1张

  • 设计效果图:无

大型多层 商业建筑设计 方案施工图CAD

内容包含建筑平立剖、建筑设计说明书、建筑节点大样图、 建筑施工 说明等

多层大型商场建筑设计

多层大型商场建筑设计

多层大型商场建筑设计

多层大型商场建筑设计

多层大型商场建筑设计

多层大型商场建筑设计

多层大型商场建筑设计


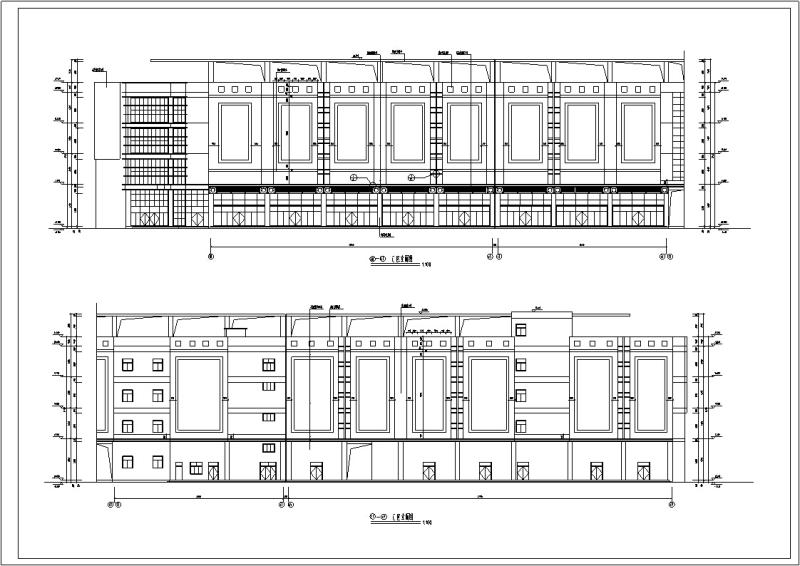
商场建筑设计图纸 - 1
第 1 张图
商场建筑设计图纸 - 2
第 2 张图
商场建筑设计图纸 - 3
第 3 张图
商场建筑设计图纸 - 4
第 4 张图
商场建筑设计图纸 - 5
第 5 张图
商场建筑设计图纸 - 6
第 6 张图
商场建筑设计图纸 - 7
第 7 张图
以上是部分图纸截图,有些图框没有放大后再截图,可能截图里不清晰或者看不到内容,您可以在下载后查看具体内容

温馨提示:该资料由网友于2020-2-1 11:16:56上传分享,您可以下载该资料进行学习和参考,如有侵权内容或者违法行为,请及时联系站长删除,如有疑问,您可以在商业建筑专区发帖交流相关知识。

附件2099v11edsew000s2cc110dscs.dwg

5.5 MB

下载  售价: 100 积分    赚积分

商场建筑设计图纸相关帖子

回复

使用道具 举报

您需要登录后才可以回帖 登录 | 立即注册

本版积分规则

QQ|联系我们|豆豆网 ( 苏ICP备20004746号-1 )

GMT+8, 2025-12-18 01:27 , Processed in 0.015906 second(s), 27 queries .

本站所有内容均由网友自主分享,如有侵权内容或者违法行为,请及时联系站长删除,本站将根据实际情况进行积分奖励!请查看:免责声明

快速回复 返回顶部 返回列表