豆豆网

 找回密码
 立即注册

QQ登录

只需一步,快速开始

查看: 669|回复: 0

一份2层框架净水厂净水车间结构CAD施工图纸

[复制链接]

0

主题

0

帖子

1831

积分

超级版主

Rank: 8Rank: 8

积分
1831
发表于 2020-2-9 10:26:01 | 显示全部楼层 |阅读模式

该帖子包含附件可供参考学习和下载,您可以 搜索 更多您想要的资源


  • 建筑类别:工业建筑
  • 厂房建筑高度类型:多层厂房
  • 建筑地上层数:2层
  • 图纸设计深度:施工图
  • 民用建筑设计使用年限:50年
  • 建筑设计结构形式:钢筋混凝土结构
  • 钢筋混凝土结构:框架
  • 基础形式 :桩基础
  • 结构安全等级:二级
  • 地基基础设计等级:丙级
  • 抗震设防烈度:7度抗震
  • 风压:0.55kN/平方米
  • 雪压:0.50kN/平方米
  • 参考图纸:42张

附件详情

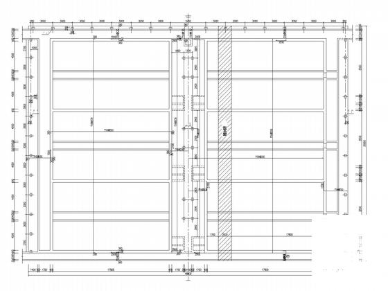
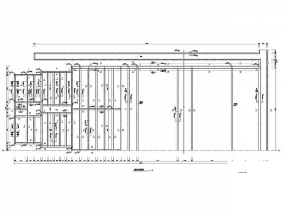
结构设计总说明、柱网平面布置及配筋图、柱顶预埋件布置图、基础梁平法施工图、楼面模板图、桩位平面布置图、梁平法施工图、结构施工图、屋面网架布置示意图、楼梯平法配筋图、滤池下层平面布置图、滤池上层 平面布置图 、滤池剖面图、滤池底板施工图、滤池顶板布置图、滤梁、滤板布置及配筋图、絮凝沉淀池模板剖面图、走道板栏杆示意图及套管加固图、伸缩缝处止水带示意图、集水池模板及配筋图、反冲洗渠配筋图、絮凝沉淀池底板配筋图、絮凝沉淀池预埋套管布置图、 节点图 共42张图纸。


柱网平面布置及配筋图

网架布置示意图

滤池底板施工图

絮凝沉淀池池壁配筋图

絮凝沉淀池预埋套管布置图

套管加固图

池壁转角节点

滤池预埋筋和滤板配筋图

构筑物底层平面布置图

水车施工图 - 1
第 1 张图
水车施工图 - 2
第 2 张图
水车施工图 - 3
第 3 张图
水车施工图 - 4
第 4 张图
水车施工图 - 5
第 5 张图
水车施工图 - 6
第 6 张图
以上是部分图纸截图,有些图框没有放大后再截图,可能截图里不清晰或者看不到内容,您可以在下载后查看具体内容

温馨提示:该资料由网友于2020-2-9 10:26:01上传分享,您可以下载该资料进行学习和参考,如有侵权内容或者违法行为,请及时联系站长删除,如有疑问,您可以在建筑施工专区发帖交流相关知识。

附件2099v11edfcccssw0e0sffsc1c.zip

4.23 MB

下载  售价: 100 积分    赚积分

水车施工图相关帖子

回复

使用道具 举报

您需要登录后才可以回帖 登录 | 立即注册

本版积分规则

QQ|联系我们|豆豆网 ( 苏ICP备20004746号-1 )

GMT+8, 2025-12-22 02:53 , Processed in 0.016695 second(s), 27 queries .

本站所有内容均由网友自主分享,如有侵权内容或者违法行为,请及时联系站长删除,本站将根据实际情况进行积分奖励!请查看:免责声明

快速回复 返回顶部 返回列表