豆豆网

 找回密码
 立即注册

QQ登录

只需一步,快速开始

查看: 720|回复: 0

一份高铁火车站主站房及站台雨棚和进出站人行天桥结构CAD施工图纸(钢管混凝土柱)

[复制链接]

0

主题

0

帖子

1467

积分

超级版主

Rank: 8Rank: 8

积分
1467
发表于 2020-2-9 10:27:03 | 显示全部楼层 |阅读模式

该帖子包含附件可供参考学习和下载,您可以 搜索 更多您想要的资源


  • 建筑类别:交通建筑
  • 建筑高度类型:多层建筑
  • 建筑地上层数:3层
  • 建筑地下层数:2层
  • 图纸设计深度:施工图
  • 民用建筑设计使用年限:50年
  • 建筑设计结构形式:钢筋混凝土结构,钢结构
  • 钢筋混凝土结构:框架
  • 钢结构:桁架
  • 基础形式 :独立基础
  • 结构安全等级:二级
  • 地基基础设计等级:丙级
  • 抗震设防烈度:6度抗震
  • 风压:0.55kN/平方米
  • 雪压:0.40kN/平方米
  • 参考图纸:59张
  • 设计年代:近代

附件详情

该项目是高铁火车站项目,由主站房(包括出站通道)、站台雨棚、进出站人行天桥组成。主站房(包括出站通道),长度为(平行于铁轨方向)120.6m,宽度为40.1m。站房屋盖:候车厅屋盖采用钢桁架结构,最大跨度为30.5m,悬挑跨度为2.4m。站台无柱风雨棚:用单榀空间钢管桁架+屋面连续钢檩条结构,跨线天桥:天桥跨度39.5米,桥面宽度12米。跨线天桥建筑设计结构形式为全钢结构桁架桥,天桥柱采用钢管混凝土柱。6度设防。
站房图纸:混凝土 结构设计说明 ,柱下独立基础 平面布置图 ,独立基础详图及说明,框架柱配筋表及柱牛腿详图,梁板配筋图,钢结构设计总说明,站房钢屋盖及出站通道轴侧示意图,出站通道钢结构平面、檩条布置图,上下弦,钢结构详图等共计27张图。
站台雨棚:设计说明,风雨棚结构、屋面檩条布置图,风雨棚结构剖面图,风雨棚及天桥独立基础布置图,上弦平面杆件布置详图, 节点详图 ,桁架详图等共计12张图。
跨线天桥:设计说明,天桥独立基础布置图,天桥基础、柱脚详图及基础说明,天桥结构横剖面及楼梯雨棚立面图,天桥桥面组合楼板结构布置及配筋图,楼梯斜梁XL详图,楼梯踏步板及楼梯梁基础详图, 节点详图 等共计20张图。
分享投稿时间:近几年

跨线天桥平行股道方向立面图

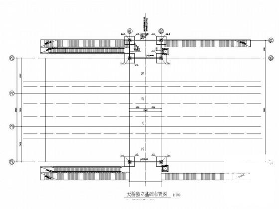
天桥独立基础布置图

风雨棚结构、屋面檩条布置图

风雨棚桁架杆件表及下弦杆分叉详图

站房柱下独立基础平面布置图

-5.900标高梁平面配筋图

站房钢屋盖及出站通道轴侧示意图

西站房结构剖面图

天桥桥面结构及楼梯结构布置图

人行天桥雨棚 - 1
第 1 张图
人行天桥雨棚 - 2
第 2 张图
人行天桥雨棚 - 3
第 3 张图
人行天桥雨棚 - 4
第 4 张图
人行天桥雨棚 - 5
第 5 张图
人行天桥雨棚 - 6
第 6 张图
人行天桥雨棚 - 7
第 7 张图
人行天桥雨棚 - 8
第 8 张图
以上是部分图纸截图,有些图框没有放大后再截图,可能截图里不清晰或者看不到内容,您可以在下载后查看具体内容

温馨提示:该资料由网友于2020-2-9 10:27:03上传分享,您可以下载该资料进行学习和参考,如有侵权内容或者违法行为,请及时联系站长删除,如有疑问,您可以在建筑施工专区发帖交流相关知识。

附件2099v11edfccs22c1wc0211cdd.rar

5.38 MB

售价: 100 积分    赚积分

人行天桥雨棚相关帖子

回复

使用道具 举报

您需要登录后才可以回帖 登录 | 立即注册

本版积分规则

QQ|联系我们|豆豆网 ( 苏ICP备20004746号-1 )

GMT+8, 2025-11-26 02:54 , Processed in 0.016412 second(s), 27 queries .

本站所有内容均由网友自主分享,如有侵权内容或者违法行为,请及时联系站长删除,本站将根据实际情况进行积分奖励!请查看:免责声明

快速回复 返回顶部 返回列表