豆豆网

 找回密码
 立即注册

QQ登录

只需一步,快速开始

查看: 1498|回复: 0

[建筑设计施工图]河畔新居底框板式6层住宅楼建筑施工CAD图纸(带节能设计)

[复制链接]

0

主题

0

帖子

1352

积分

超级版主

Rank: 8Rank: 8

积分
1352
发表于 2020-1-21 22:44:28 | 显示全部楼层 |阅读模式

该帖子包含附件可供参考学习和下载,您可以 搜索 更多您想要的资源


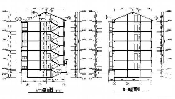
  • 住宅类型(型体):板式
  • 商业:有
  • 建筑高度类型:多层建筑
  • 图纸设计深度:施工图
  • 项目所在地:安徽
  • 图纸设计格式:天正建筑CAD 7.0,CAD2000
  • 建筑设计面积:2296.2平方米
  • 建筑高度:18.00m
  • 地上层数:6层
  • 设计效果图:无

附件详情

地上6层,建筑高度为18.000米,二类多层建筑。
建筑设计面积:2296.2m2,抗震设防烈度为6度,耐火等级为三级,,屋面防水等级为Ⅱ级,合理使用年限50年。
本栋楼的体型系数为0.24,符合<>4.0.4的要求
内容包括:建筑设计施工图及节能设计说明

第 1 张图
第 1 张图
第 2 张图
第 2 张图
第 3 张图
第 3 张图
第 4 张图
第 4 张图
以上是部分图纸截图,有些图框没有放大后再截图,可能截图里不清晰或者看不到内容,您可以在下载后查看具体内容

温馨提示:该资料由网友于2020-1-21 22:44:28上传分享,您可以下载该资料进行学习和参考,如有侵权内容或者违法行为,请及时联系站长删除,如有疑问,您可以在居住建筑专区发帖交流相关知识。

附件2099v11ed121c221cc1s0de0ss.rar

4.89 MB

下载  售价: 100 积分    赚积分

相关帖子

回复

使用道具 举报

您需要登录后才可以回帖 登录 | 立即注册

本版积分规则

QQ|联系我们|豆豆网 ( 苏ICP备20004746号-1 )

GMT+8, 2025-12-30 10:43 , Processed in 0.018952 second(s), 27 queries .

本站所有内容均由网友自主分享,如有侵权内容或者违法行为,请及时联系站长删除,本站将根据实际情况进行积分奖励!请查看:免责声明

快速回复 返回顶部 返回列表