豆豆网

 找回密码
 立即注册

QQ登录

只需一步,快速开始

查看: 707|回复: 0

一份钢框架结构捷豹路虎4S店结构CAD施工图纸(展厅车间)

[复制链接]

0

主题

0

帖子

1390

积分

超级版主

Rank: 8Rank: 8

积分
1390
发表于 2020-2-9 17:24:53 | 显示全部楼层 |阅读模式

该帖子包含附件可供参考学习和下载,您可以 搜索 更多您想要的资源


  • 建筑类别:商业
  • 建筑高度类型:单层建筑
  • 建筑地上层数:1层
  • 图纸设计深度:施工图
  • 民用建筑设计使用年限:50年
  • 建筑设计结构形式:钢结构
  • 钢结构:门式刚架,轻钢结构
  • 基础形式 :桩基础
  • 结构安全等级:二级
  • 地基基础设计等级:丙级
  • 抗震设防烈度:6度抗震
  • 风压:0.30kN/平方米
  • 雪压:0.15kN/平方米
  • 参考图纸:16张
  • 设计年代:近代

附件详情

该项目位于贵州省遵义市区,地上1层(局部夹层),建筑物高度(室外地面至女儿墙顶):9.15米,上部结构体系:展厅为钢框架,车间为单层门式刚架厂房;基础采用挖孔桩;结构设计使用年限为50年。
该资料包含:钢结构设计总说明,底层钢柱及锚栓布置图,柱脚及锚栓大样,车间屋面结构 平面布置图 ,车间支撑及大样,展厅结构夹层布置图,展厅屋面结构布置图,钢框架节点大样,组合楼板布置图,檩条布置图,楼梯图等共计16张图。
设计年代:近代。

车间屋面结构平面布置图

车间支撑及大样

檩条布置图

组合楼板图

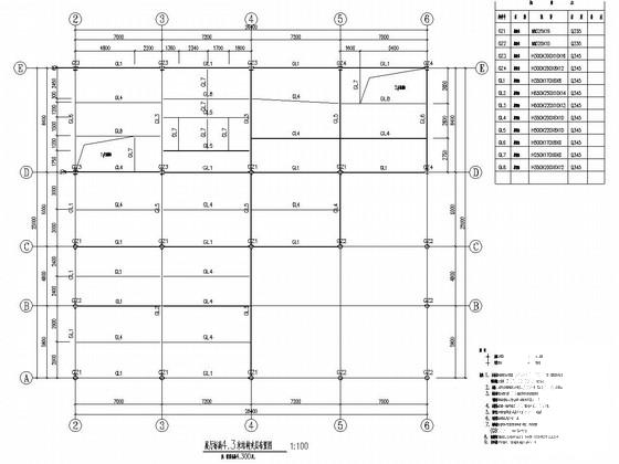
展厅标高4.3米结构夹层布置图

第 1 张图
第 1 张图
第 2 张图
第 2 张图
第 3 张图
第 3 张图
第 4 张图
第 4 张图
第 5 张图
第 5 张图
第 6 张图
第 6 张图
以上是部分图纸截图,有些图框没有放大后再截图,可能截图里不清晰或者看不到内容,您可以在下载后查看具体内容

温馨提示:该资料由网友于2020-2-9 17:24:53上传分享,您可以下载该资料进行学习和参考,如有侵权内容或者违法行为,请及时联系站长删除,如有疑问,您可以在建筑施工专区发帖交流相关知识。

附件2099v11edfcwccc2cdd02c00fe.rar

2.45 MB

下载  售价: 100 积分    赚积分

相关帖子

回复

使用道具 举报

您需要登录后才可以回帖 登录 | 立即注册

本版积分规则

QQ|联系我们|豆豆网 ( 苏ICP备20004746号-1 )

GMT+8, 2025-12-28 19:23 , Processed in 0.015608 second(s), 27 queries .

本站所有内容均由网友自主分享,如有侵权内容或者违法行为,请及时联系站长删除,本站将根据实际情况进行积分奖励!请查看:免责声明

快速回复 返回顶部 返回列表