豆豆网

 找回密码
 立即注册

QQ登录

只需一步,快速开始

查看: 743|回复: 0

一份小学传达室及附属用房建筑施工CAD图纸(结构图纸)(平面图)

[复制链接]

0

主题

0

帖子

1096

积分

超级版主

Rank: 8Rank: 8

积分
1096
发表于 2020-2-10 17:04:32 | 显示全部楼层 |阅读模式

该帖子包含附件可供参考学习和下载,您可以 搜索 更多您想要的资源


  • 建筑类别:中小学校
  • 建筑高度类型:单层建筑,多层建筑
  • 外立面材料:石材
  • 图纸设计深度:施工图
  • 项目所在地:浙江
  • 图纸设计风格:现代风格
  • 图纸设计流派:现代
  • 图纸设计格式:天正建筑CAD 7.0,CAD2000
  • 参考图纸:12张

附件详情

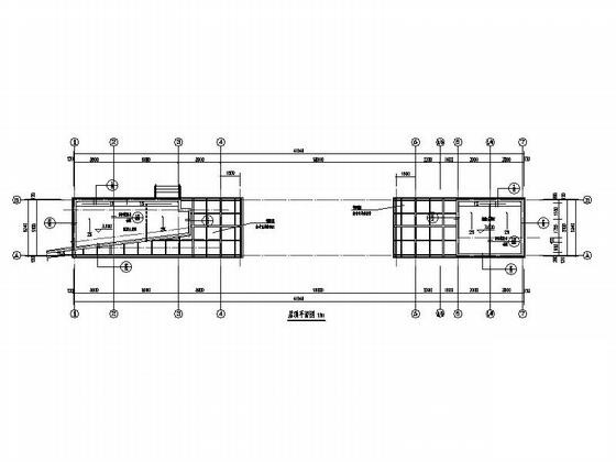
进深*开间:5.34mx41.64m
层高:4.1m
该资料包含:建筑各层平面图、立面图、剖面图、详图、大样等。

小学传达室剖面图

小学传达室平面图

小学传达室立面图

小学传达室立面图

小学传达室平面图

小学传达室平面图

小学传达室平面图

小学传达室大样图

小学传达室大样图

小学传达室大样图

缩略图

第 1 张图
第 1 张图
第 2 张图
第 2 张图
第 3 张图
第 3 张图
第 4 张图
第 4 张图
第 5 张图
第 5 张图
第 6 张图
第 6 张图
第 7 张图
第 7 张图
以上是部分图纸截图,有些图框没有放大后再截图,可能截图里不清晰或者看不到内容,您可以在下载后查看具体内容

温馨提示:该资料由网友于2020-2-10 17:04:32上传分享,您可以下载该资料进行学习和参考,如有侵权内容或者违法行为,请及时联系站长删除,如有疑问,您可以在建筑施工专区发帖交流相关知识。

附件2099v11edsw1d1ccfcw2cccc0f.zip

984.01 KB

下载  售价: 100 积分    赚积分

相关帖子

回复

使用道具 举报

您需要登录后才可以回帖 登录 | 立即注册

本版积分规则

QQ|联系我们|豆豆网 ( 苏ICP备20004746号-1 )

GMT+8, 2025-12-25 19:48 , Processed in 0.016130 second(s), 27 queries .

本站所有内容均由网友自主分享,如有侵权内容或者违法行为,请及时联系站长删除,本站将根据实际情况进行积分奖励!请查看:免责声明

快速回复 返回顶部 返回列表