豆豆网

 找回密码
 立即注册

QQ登录

只需一步,快速开始

查看: 561|回复: 0

一份3层15班法式贵族幼儿园建筑施工CAD图纸

[复制链接]

0

主题

0

帖子

1390

积分

超级版主

Rank: 8Rank: 8

积分
1390
发表于 2020-2-10 20:55:38 | 显示全部楼层 |阅读模式

该帖子包含附件可供参考学习和下载,您可以 搜索 更多您想要的资源


  • 幼儿园规模: 大型(10-12班以上)
  • 结构类型:框架结构
  • 建筑类别:幼儿园
  • 建筑高度类型:多层建筑
  • 外立面材料:幕墙
  • 幕墙面板材料:玻璃幕墙
  • 图纸设计深度:施工图
  • 图纸设计风格:欧陆风格
  • 图纸设计格式:天正建筑CAD 7.0
  • 参考图纸:27张
  • 建筑设计面积:5773.2平方米
  • 建筑高度:12.68m
  • 建筑地上层数:3层
  • 设计效果图:无

附件详情

项目概要:大型15班幼儿园教育办公楼,多层建筑,耐火等级为二级,主要结构类型为框架结构,抗震设防力度为7度,设计使用年限为50年。
该资料包含:设计说明、各层平面图、立面图、剖面图、 节点详图 等。

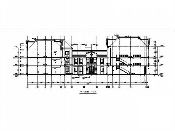
15班法式贵族幼儿园剖面图

15班法式贵族幼儿园平面图

15班法式贵族幼儿园立面图

15班法式贵族幼儿园立面图

15班法式贵族幼儿园立面图

15班法式贵族幼儿园剖面图

15班法式贵族幼儿园剖面图

15班法式贵族幼儿园平面图

15班法式贵族幼儿园平面图

15班法式贵族幼儿园详图

15班法式贵族幼儿园详图

15班法式贵族幼儿园详图

总缩略图

法式贵族幼儿园 - 1
第 1 张图
法式贵族幼儿园 - 2
第 2 张图
法式贵族幼儿园 - 3
第 3 张图
法式贵族幼儿园 - 4
第 4 张图
法式贵族幼儿园 - 5
第 5 张图
法式贵族幼儿园 - 6
第 6 张图
法式贵族幼儿园 - 7
第 7 张图
法式贵族幼儿园 - 8
第 8 张图
以上是部分图纸截图,有些图框没有放大后再截图,可能截图里不清晰或者看不到内容,您可以在下载后查看具体内容

温馨提示:该资料由网友于2020-2-10 20:55:38上传分享,您可以下载该资料进行学习和参考,如有侵权内容或者违法行为,请及时联系站长删除,如有疑问,您可以在建筑施工专区发帖交流相关知识。

附件2099v11edsw0fs2e2wc10cs10s.zip

3.04 MB

下载  售价: 100 积分    赚积分

法式贵族幼儿园相关帖子

回复

使用道具 举报

您需要登录后才可以回帖 登录 | 立即注册

本版积分规则

QQ|联系我们|豆豆网 ( 苏ICP备20004746号-1 )

GMT+8, 2025-12-27 23:13 , Processed in 0.031289 second(s), 27 queries .

本站所有内容均由网友自主分享,如有侵权内容或者违法行为,请及时联系站长删除,本站将根据实际情况进行积分奖励!请查看:免责声明

快速回复 返回顶部 返回列表