豆豆网

 找回密码
 立即注册

QQ登录

只需一步,快速开始

查看: 786|回复: 0

城市次干路道路路基路面CAD施工图纸设计27张(dwg)

[复制链接]

0

主题

0

帖子

1596

积分

超级版主

Rank: 8Rank: 8

积分
1596
发表于 2020-6-22 22:07:33 | 显示全部楼层 |阅读模式

该帖子包含附件可供参考学习和下载,您可以 搜索 更多您想要的资源


附件详情

设计标准:
(1)道路等级:城市次干路
(2)设计速度:50km/h
(3)设计年限:沥青砼路面15年
(4)交通等级:重
(5)标准轴载:BZZ—100
(6)抗震标准:按地震烈度6度设防
……
路基挖土必须按设计断面自上而下开挖,不得乱挖、超挖、严禁掏洞取土。弃土应及时清运,不得乱堆乱放。地下水位较高或土质湿软地段的路基的压实度达不到规定时,可采用晾晒、换土、石灰处理、设置砂垫层、砂桩等。
路基填土应不含有任何不适宜工程使用的土,不得使用腐植土、生活垃圾土、淤泥、冻土块和盐渍土。路基填土不得含草、树根等杂物,粒径超过10厘米的土块应打碎。路堤基底原状土的强度不符合要求时,应进行换填,换填深度应不小于30厘米,并予以分层压实。
……
共27张,编制于2015年。

s-i-18 公交港湾及路口拓宽设计大样图.dwg
s-i-18 公交港湾及路口拓宽设计大样图.dwg
s-i-08 路基一般设计图.dwg
s-i-08 路基一般设计图.dwg
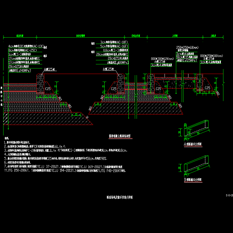
s-i-13 路面结构设计图.dwg
s-i-13 路面结构设计图.dwg
s-i-14 新老路基衔接.dwg
s-i-14 新老路基衔接.dwg
s-i-15 无障碍大样.dwg
s-i-15 无障碍大样.dwg
s-i-16 盲道设计大样图.dwg
s-i-16 盲道设计大样图.dwg
s-i-17 人行道铺砌大样图.dwg
s-i-17 人行道铺砌大样图.dwg
s-i-19 路基防护工程设计图.dwg
s-i-19 路基防护工程设计图.dwg
以上是部分图纸截图,有些图框没有放大后再截图,可能截图里不清晰或者看不到内容,您可以在下载后查看具体内容

温馨提示:该资料由网友于2020-6-22 22:07:33上传分享,您可以下载该资料进行学习和参考,如有侵权内容或者违法行为,请及时联系站长删除,如有疑问,您可以在建筑施工专区发帖交流相关知识。

附件2099v11ec2ws10scesc2dds.rar

3.29 MB

下载  售价: 100 积分    赚积分

相关帖子

回复

使用道具 举报

您需要登录后才可以回帖 登录 | 立即注册

本版积分规则

QQ|联系我们|豆豆网 ( 苏ICP备20004746号-1 )

GMT+8, 2025-12-28 00:51 , Processed in 0.017553 second(s), 28 queries .

本站所有内容均由网友自主分享,如有侵权内容或者违法行为,请及时联系站长删除,本站将根据实际情况进行积分奖励!请查看:免责声明

快速回复 返回顶部 返回列表