豆豆网

 找回密码
 立即注册

QQ登录

只需一步,快速开始

查看: 699|回复: 0

一份县人民医院6层住院楼建筑施工CAD图纸(效果图纸)(卫生间大样图)

[复制链接]

0

主题

0

帖子

1096

积分

超级版主

Rank: 8Rank: 8

积分
1096
发表于 2020-2-12 15:57:17 | 显示全部楼层 |阅读模式

该帖子包含附件可供参考学习和下载,您可以 搜索 更多您想要的资源


  • 病床数:305床
  • 建筑高度类型:多层建筑
  • 图纸设计深度:施工图
  • 项目所在地:湖南
  • 图纸设计风格:中式风格
  • 图纸设计流派:新中式
  • 图纸设计格式:JPG,天正建筑CAD 7.0,CAD2000
  • 参考图纸:27张
  • 建筑设计面积:91259.2平方米
  • 占地面积:27364.5平方米
  • 容积率:0.76平方米
  • 建筑密度:22.9%
  • 绿化率:49.6%
  • 建筑高度:26.85m
  • 地上层数:6层
  • 地下室建筑设计面积:464平方米
  • 设计效果图:有

附件详情

[湖南]某县人民医院六层住院楼 建筑施工 图(含效果图)——26张CAD、1张JPG

主要功能:一、二层为神经内科护理单元, 三、四层为神经外科护理单元,五层为儿科护理单元,六层为新生儿科单元及儿科治疗用房,屋顶架空层为净化机房
床数:305个
类型:中型

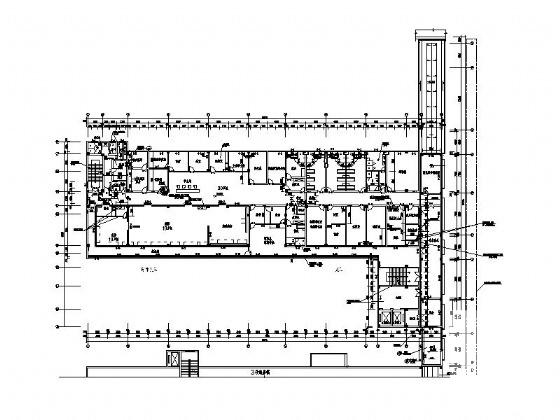
该资料包含:建筑施工统一说明、建筑构造一览表、门窗明细表、一层平面图、二~六层平面图、屋顶平面图、架空层平面图、立面图、剖面图、节点大样图、门窗大样图、病房大样图、卫生间大样图

总平面图

病房平面

医院建筑效果图 - 1
第 1 张图
医院建筑效果图 - 2
第 2 张图
医院建筑效果图 - 3
第 3 张图
医院建筑效果图 - 4
第 4 张图
医院建筑效果图 - 5
第 5 张图
以上是部分图纸截图,有些图框没有放大后再截图,可能截图里不清晰或者看不到内容,您可以在下载后查看具体内容

温馨提示:该资料由网友于2020-2-12 15:57:17上传分享,您可以下载该资料进行学习和参考,如有侵权内容或者违法行为,请及时联系站长删除,如有疑问,您可以在建筑施工专区发帖交流相关知识。

附件2099v11edscw1cfc12s1dcc0f2.rar

3.56 MB

下载  售价: 100 积分    赚积分

医院建筑效果图相关帖子

回复

使用道具 举报

您需要登录后才可以回帖 登录 | 立即注册

本版积分规则

QQ|联系我们|豆豆网 ( 苏ICP备20004746号-1 )

GMT+8, 2025-12-22 06:33 , Processed in 0.016748 second(s), 27 queries .

本站所有内容均由网友自主分享,如有侵权内容或者违法行为,请及时联系站长删除,本站将根据实际情况进行积分奖励!请查看:免责声明

快速回复 返回顶部 返回列表