豆豆网

 找回密码
 立即注册

QQ登录

只需一步,快速开始

查看: 2714|回复: 0

一份商业用房建筑设计CAD施工图纸(钢筋混凝土结构)

[复制链接]

0

主题

0

帖子

1832

积分

超级版主

Rank: 8Rank: 8

积分
1832
发表于 2020-2-14 09:15:49 | 显示全部楼层 |阅读模式

该帖子包含附件可供参考学习和下载,您可以 搜索 更多您想要的资源


  • 建筑高度类型:多层建筑

  • 外立面材料:幕墙,石材

  • 幕墙面板材料:石材幕墙,人造板幕墙

  • 建筑设计结构形式:钢筋混凝土结构

  • 钢筋混凝土结构:框架

  • 图纸设计深度:施工图

  • 图纸设计风格:现代风格

  • 图纸设计流派:现代

  • 图纸设计格式:天正建筑CAD 7.0,CAD2000

  • 参考图纸:10张

  • 地下室功能:商业,设备用房

  • 设计效果图:无

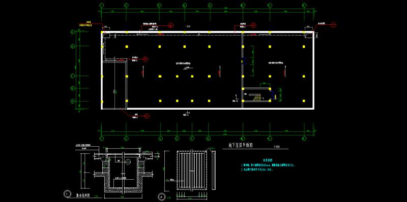
商业配套设备储藏建筑 设计方案

内容包含建筑设计施工图、效果图、节点机构施工图

商业建筑设计

商业建筑设计2

商业建筑设计3

商业建筑设计4

商业建筑设计5

商业建筑设计6

商业建筑设计7

商业建筑设计8

商业建筑设计9

商业建筑设计10


第 1 张图
第 1 张图
第 2 张图
第 2 张图
第 3 张图
第 3 张图
第 4 张图
第 4 张图
第 5 张图
第 5 张图
第 6 张图
第 6 张图
第 7 张图
第 7 张图
第 8 张图
第 8 张图
第 9 张图
第 9 张图
第 10 张图
第 10 张图
以上是部分图纸截图,有些图框没有放大后再截图,可能截图里不清晰或者看不到内容,您可以在下载后查看具体内容

温馨提示:该资料由网友于2020-2-14 09:15:49上传分享,您可以下载该资料进行学习和参考,如有侵权内容或者违法行为,请及时联系站长删除,如有疑问,您可以在商业建筑专区发帖交流相关知识。

附件2099v11edsew0fc0cfdceef2s1.zip

1.18 MB

下载  售价: 100 积分    赚积分

相关帖子

回复

使用道具 举报

您需要登录后才可以回帖 登录 | 立即注册

本版积分规则

QQ|联系我们|豆豆网 ( 苏ICP备20004746号-1 )

GMT+8, 2025-12-27 16:59 , Processed in 0.017228 second(s), 27 queries .

本站所有内容均由网友自主分享,如有侵权内容或者违法行为,请及时联系站长删除,本站将根据实际情况进行积分奖励!请查看:免责声明

快速回复 返回顶部 返回列表