豆豆网

 找回密码
 立即注册

QQ登录

只需一步,快速开始

查看: 2180|回复: 0

[框架结构]3层现代别墅建筑dwg格式CAD图纸(C2户型)

[复制链接]

0

主题

0

帖子

1096

积分

超级版主

Rank: 8Rank: 8

积分
1096
发表于 2020-1-22 23:59:43 | 显示全部楼层 |阅读模式

该帖子包含附件可供参考学习和下载,您可以 搜索 更多您想要的资源


  • 工程设计年代:近代-09
  • 图纸设计深度:方案
  • 建筑面积(平方米):439.82
  • 建筑高度(米):9.900
  • 建筑层数:3

附件详情

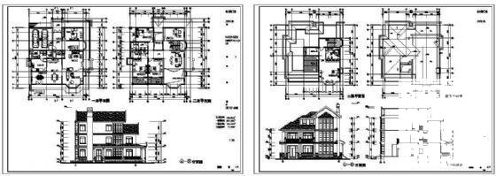
该资料为:某二层现代别墅建筑方案(C2户型)
工程建筑面积约为:439.82平方米
首层面积:207.60平方米
二层面积:154.62平方米
三层面积:77.60平方米
建筑设计结构形式为:框架结构
层数为:三层
高度为:9.900米
这份参考资料包括:各层建筑平面,立面,剖面图,共2张图纸。
设计功能包括:双车库,门厅,客厅,家庭室,餐厅,厨房,卫生间,洗衣房,工人房,卫生间,5个卧室,更衣室,书房等。

2

2

3

3

4

现代别墅结构 - 1
第 1 张图
现代别墅结构 - 2
第 2 张图
现代别墅结构 - 3
第 3 张图
现代别墅结构 - 4
第 4 张图
以上是部分图纸截图,有些图框没有放大后再截图,可能截图里不清晰或者看不到内容,您可以在下载后查看具体内容

温馨提示:该资料由网友于2020-1-22 23:59:43上传分享,您可以下载该资料进行学习和参考,如有侵权内容或者违法行为,请及时联系站长删除,如有疑问,您可以在别墅建筑专区发帖交流相关知识。

附件2099v11ed12dfee0ewc20ccfds.rar

939.57 KB

下载  售价: 100 积分    赚积分

现代别墅结构相关帖子

回复

使用道具 举报

您需要登录后才可以回帖 登录 | 立即注册

本版积分规则

QQ|联系我们|豆豆网 ( 苏ICP备20004746号-1 )

GMT+8, 2025-12-28 01:12 , Processed in 0.016061 second(s), 28 queries .

本站所有内容均由网友自主分享,如有侵权内容或者违法行为,请及时联系站长删除,本站将根据实际情况进行积分奖励!请查看:免责声明

快速回复 返回顶部 返回列表