豆豆网

 找回密码
 立即注册

QQ登录

只需一步,快速开始

查看: 2393|回复: 0

一份20米高铁路站房给排水消防CAD施工图纸(自动喷水灭火系统)

[复制链接]

0

主题

0

帖子

1832

积分

超级版主

Rank: 8Rank: 8

积分
1832
发表于 2020-2-16 15:20:22 | 显示全部楼层 |阅读模式

该帖子包含附件可供参考学习和下载,您可以 搜索 更多您想要的资源


  • 附件设计说明:有
  • 建筑类别:交通建筑
  • 建筑高度类型:单层建筑
  • 建筑设计结构形式:钢筋混凝土结构
  • 建筑设计面积:5986平方米
  • 建筑地上层数:1层
  • 建筑地下层数:2层
  • 图纸设计深度:施工图
  • 参考图纸:22张
  • 生活供水设计:生活给水系统
  • 消防设计:室内消火栓系统
  • 排水体制:污废合流
  • 消火栓用水量室内(L/S):20
  • 大样节点:水箱,泵房,卫生间,集水坑
  • 项目所在地:江苏

附件详情

  • 设计总说明
  • 给排水及消防平面图
  • 自喷平面图
  • 消火栓系统图
  • 消防炮系统图
  • 自动喷水灭火系统原理图
  • 卫生间大样图
  • 给排水系统图
  • 消防泵房大样图
  • 消防水箱大样图
  • 消防水池及集水坑剖面图

附件详情

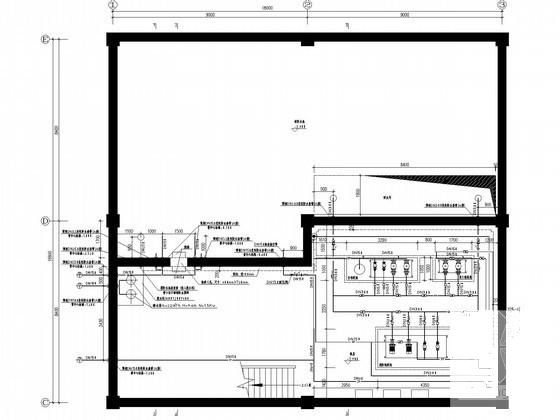
该项目综合楼总建筑面积5986平方米,最高聚集人数600人,地上1层,设备管理用房局部2层,地下局部1层,建筑主体高度20米。该资料范围为:站房内的给排水系统和 消防系统 设计。
共22张。

泵房平面图

给水系统图

自喷平面图

铁路给排水 - 1
第 1 张图
铁路给排水 - 2
第 2 张图
铁路给排水 - 3
第 3 张图
铁路给排水 - 4
第 4 张图
以上是部分图纸截图,有些图框没有放大后再截图,可能截图里不清晰或者看不到内容,您可以在下载后查看具体内容

温馨提示:该资料由网友于2020-2-16 15:20:22上传分享,您可以下载该资料进行学习和参考,如有侵权内容或者违法行为,请及时联系站长删除,如有疑问,您可以在给水排水专区发帖交流相关知识。

附件2099v11edew22wwfs02d2es02s.rar

1.07 MB

下载  售价: 100 积分    赚积分

铁路给排水相关帖子

回复

使用道具 举报

您需要登录后才可以回帖 登录 | 立即注册

本版积分规则

QQ|联系我们|豆豆网 ( 苏ICP备20004746号-1 )

GMT+8, 2025-12-27 05:44 , Processed in 0.017509 second(s), 28 queries .

本站所有内容均由网友自主分享,如有侵权内容或者违法行为,请及时联系站长删除,本站将根据实际情况进行积分奖励!请查看:免责声明

快速回复 返回顶部 返回列表