豆豆网

 找回密码
 立即注册

QQ登录

只需一步,快速开始

查看: 3282|回复: 0

一份单元式住宅楼给排水消防CAD施工图纸

[复制链接]

0

主题

0

帖子

1516

积分

超级版主

Rank: 8Rank: 8

积分
1516
发表于 2020-2-16 15:20:34 | 显示全部楼层 |阅读模式

该帖子包含附件可供参考学习和下载,您可以 搜索 更多您想要的资源


  • 附件设计说明:有
  • 建筑类别:住宅
  • 建筑高度类型:高层建筑
  • 建筑设计结构形式:钢筋混凝土结构
  • 建筑地上层数:11层
  • 图纸设计深度:施工图
  • 参考图纸:17张
  • 设计年代:近代
  • 生活供水设计:生活给水系统
  • 排水设计:废水系统
  • 消防设计:室外消火栓系统,室内消火栓系统,喷淋系统
  • 供水分区:两区
  • 排水体制:雨污分流
  • 消火栓用水量室外(L/S):15
  • 消火栓用水量室内(L/S):20
  • 大样节点:泵房
  • 项目所在地:四川

附件详情

  • 设计说明
  • 卫生间放大及给排水系统图
  • 给排水平面图
  • 排水系统图
  • 高低区给水系统图
  • 消火栓给水系统图
  • 生活给水干管系统图
  • 水泵房详图
  • 废水排水示意图
  • 喷淋系统展开图
  • 集水坑排水系统图
  • 消防水池系统图
  • 给水总平面图
  • 排水总平面图

附件详情

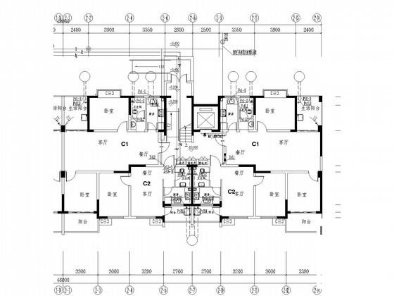
该建筑物为十一层单元式住宅;为二类单元式高层住宅建筑.
设计范围包括1.室内给水系统 2.室内排水系统 3.室内消火栓系统 5.建筑灭火器系统. 6.室外给排水系统. 7.住宅空调排水及雨水系统见建施.
,共17张。

给排水平面图

给水系统图

消火栓系统图

单元式住宅给排水 - 1
第 1 张图
单元式住宅给排水 - 2
第 2 张图
单元式住宅给排水 - 3
第 3 张图
单元式住宅给排水 - 4
第 4 张图
以上是部分图纸截图,有些图框没有放大后再截图,可能截图里不清晰或者看不到内容,您可以在下载后查看具体内容

温馨提示:该资料由网友于2020-2-16 15:20:34上传分享,您可以下载该资料进行学习和参考,如有侵权内容或者违法行为,请及时联系站长删除,如有疑问,您可以在给水排水专区发帖交流相关知识。

附件2099v11edew2cwffwfcs2120fd.rar

3.32 MB

下载  售价: 100 积分    赚积分

单元式住宅给排水相关帖子

回复

使用道具 举报

您需要登录后才可以回帖 登录 | 立即注册

本版积分规则

QQ|联系我们|豆豆网 ( 苏ICP备20004746号-1 )

GMT+8, 2025-12-18 14:26 , Processed in 0.049693 second(s), 27 queries .

本站所有内容均由网友自主分享,如有侵权内容或者违法行为,请及时联系站长删除,本站将根据实际情况进行积分奖励!请查看:免责声明

快速回复 返回顶部 返回列表