豆豆网

 找回密码
 立即注册

QQ登录

只需一步,快速开始

查看: 3056|回复: 0

一份教学楼给排水及消防CAD施工图纸

[复制链接]

0

主题

0

帖子

1322

积分

超级版主

Rank: 8Rank: 8

积分
1322
发表于 2020-2-16 15:20:48 | 显示全部楼层 |阅读模式

该帖子包含附件可供参考学习和下载,您可以 搜索 更多您想要的资源


  • 附件设计说明:有

附件详情

  • 给排水设计施工说明
  • 给排水平面图
  • 给排水系统图
  • 消防栓给水系统原理图
  • 排水系统图
  • 生活泵房、消防泵房大样图
  • 消防水箱间大样图

附件详情

一、项目概要:
耐火等级:地上二级、地下一级。
建筑高度:16.5m
建筑设计面积:该项目占地面积24064平方米,总建筑面积13577.61平方米,:地上建筑面积12632.41平方米,地下建筑设计面积:945.20平方米。
二、设计范围:
建筑单体室内给排水系统设计和消火栓设计。
三、系统:
给排水系统:给水系统、污废水排水系统、热水系统、雨水排水系统。
消防系统 :消火栓给水系统、灭火器设置。
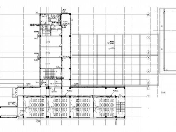
,共16张。

给水平面图

给水系统图

生活泵房、消防泵房大样图

第 1 张图
第 1 张图
第 2 张图
第 2 张图
第 3 张图
第 3 张图
第 4 张图
第 4 张图
以上是部分图纸截图,有些图框没有放大后再截图,可能截图里不清晰或者看不到内容,您可以在下载后查看具体内容

温馨提示:该资料由网友于2020-2-16 15:20:48上传分享,您可以下载该资料进行学习和参考,如有侵权内容或者违法行为,请及时联系站长删除,如有疑问,您可以在给水排水专区发帖交流相关知识。

附件2099v11edew2fc2fefsec0f0sc.rar

3.01 MB

下载  售价: 100 积分    赚积分

相关帖子

回复

使用道具 举报

您需要登录后才可以回帖 登录 | 立即注册

本版积分规则

QQ|联系我们|豆豆网 ( 苏ICP备20004746号-1 )

GMT+8, 2025-12-25 22:47 , Processed in 0.014900 second(s), 27 queries .

本站所有内容均由网友自主分享,如有侵权内容或者违法行为,请及时联系站长删除,本站将根据实际情况进行积分奖励!请查看:免责声明

快速回复 返回顶部 返回列表