豆豆网

 找回密码
 立即注册

QQ登录

只需一步,快速开始

查看: 1616|回复: 0

[短肢剪力墙结构]比较详细的15层住宅楼建筑dwg格式CAD图纸

[复制链接]

0

主题

0

帖子

1597

积分

超级版主

Rank: 8Rank: 8

积分
1597
发表于 2020-1-23 10:02:18 | 显示全部楼层 |阅读模式

该帖子包含附件可供参考学习和下载,您可以 搜索 更多您想要的资源


  • 住宅类型(型体):塔式(一梯4户以下)
  • 建筑高度类型:高层建筑
  • 建筑设计结构形式:钢筋混凝土结构
  • 钢筋混凝土结构:剪力墙
  • 图纸设计深度 :方案(初设图)
  • 项目所在地:江苏
  • 图纸设计风格:现代风格
  • 图纸设计流派:现代
  • 图纸设计格式:天正建筑CAD 7.0,CAD2000
  • 参考图纸:13张
  • 建筑高度:51.0m
  • 地上层数:15层
  • 设计效果图:无

附件详情

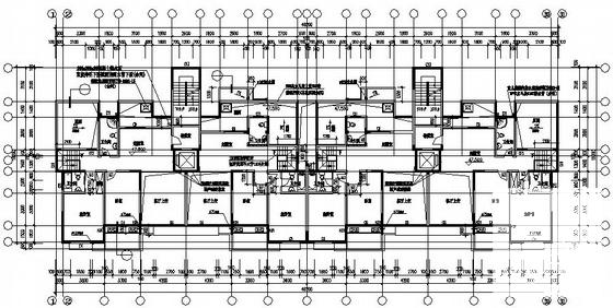
该资料为[江苏盐城]某十五层住宅楼(5号楼)建筑方案图
工程车库层建筑设计面积:578m2,架空层建筑设计面积:550m2,一至十四层建筑设计面积:7980m2,十五层建筑设计面积:557m2,跃层建筑设计面积:365m2,出屋面楼梯间建筑设计面积:52m2,建筑设计结构形式为:钢筋混凝土短肢剪力墙结构、层数为: 15层、高度为: 51.0米
这份参考资料包括各层建筑平面、立面、剖面图等,共13张图纸
设计功能包括:卧室、客厅、书房等。

第 1 张图
第 1 张图
第 2 张图
第 2 张图
第 3 张图
第 3 张图
第 4 张图
第 4 张图
以上是部分图纸截图,有些图框没有放大后再截图,可能截图里不清晰或者看不到内容,您可以在下载后查看具体内容

温馨提示:该资料由网友于2020-1-23 10:02:18上传分享,您可以下载该资料进行学习和参考,如有侵权内容或者违法行为,请及时联系站长删除,如有疑问,您可以在居住建筑专区发帖交流相关知识。

附件2099v11ed12w2cwd2cc2ec02f0.rar

1.02 MB

下载  售价: 100 积分    赚积分

相关帖子

回复

使用道具 举报

您需要登录后才可以回帖 登录 | 立即注册

本版积分规则

QQ|联系我们|豆豆网 ( 苏ICP备20004746号-1 )

GMT+8, 2025-12-29 20:58 , Processed in 0.016093 second(s), 28 queries .

本站所有内容均由网友自主分享,如有侵权内容或者违法行为,请及时联系站长删除,本站将根据实际情况进行积分奖励!请查看:免责声明

快速回复 返回顶部 返回列表