豆豆网

 找回密码
 立即注册

QQ登录

只需一步,快速开始

查看: 2636|回复: 0

一份4层老年公寓给排水CAD施工图纸

[复制链接]

0

主题

0

帖子

1245

积分

超级版主

Rank: 8Rank: 8

积分
1245
发表于 2020-2-16 16:57:33 | 显示全部楼层 |阅读模式

该帖子包含附件可供参考学习和下载,您可以 搜索 更多您想要的资源


  • 附件设计说明:有
  • 建筑类别:住宅
  • 建筑高度类型:多层建筑
  • 建筑设计结构形式:钢筋混凝土结构
  • 建筑地上层数:4层
  • 图纸设计深度:施工图
  • 参考图纸:8张
  • 设计年代:近代
  • 生活供水设计:生活给水系统
  • 排水设计:污水系统,废水系统,雨水系统
  • 消防设计:室内消火栓系统
  • 供水方式:市政供水
  • 供水分区:无
  • 排水体制:污废合流,雨污分流
  • 排水技术:重力排水
  • 火灾危险等级:轻危险级
  • 消火栓用水量室内(L/S):5,15
  • 大样节点:水箱,卫生间
  • 项目所在地:安徽

附件详情

  • 给排水设计总说明
  • 一层给排水平面图
  • 二层给排水平面图
  • 三层给排水平面图
  • 四层给排水平面图
  • 屋面给排水平面图
  • 卫生间给排水大样图
  • 消防水箱大样图
  • 排水系统图
  • 消火栓系统图

附件详情

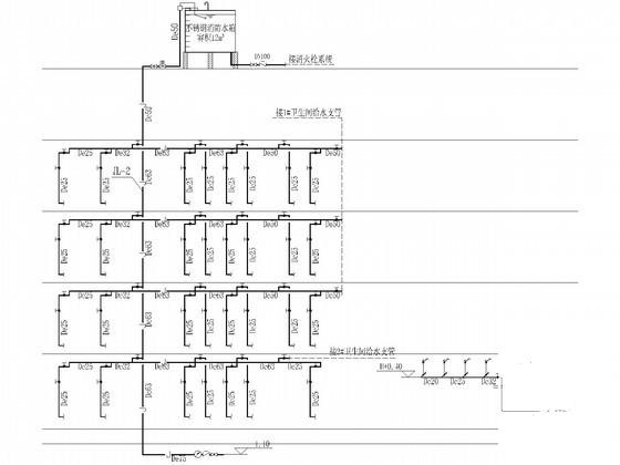
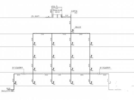
该项目位于安徽,是一栋老年公寓的给排水及消防设计项目,建筑层数为四层,建筑高度13.8m。本建筑采用不锈钢成品消防水箱,设置于本屋顶,消防水箱12立方米。
该项目设计范围:室内 消防系统 、给水系统、污废水排水系统、雨水系统、灭火器配置设计

,共计8张图纸;

卫生间大样图

消火栓系统图

给水系统原理图

老年公寓给排水 - 1
第 1 张图
老年公寓给排水 - 2
第 2 张图
老年公寓给排水 - 3
第 3 张图
老年公寓给排水 - 4
第 4 张图
以上是部分图纸截图,有些图框没有放大后再截图,可能截图里不清晰或者看不到内容,您可以在下载后查看具体内容

温馨提示:该资料由网友于2020-2-16 16:57:33上传分享,您可以下载该资料进行学习和参考,如有侵权内容或者违法行为,请及时联系站长删除,如有疑问,您可以在给水排水专区发帖交流相关知识。

附件2099v11edewfdcf1cfs1ec0e21.rar

650.12 KB

下载  售价: 100 积分    赚积分

老年公寓给排水相关帖子

回复

使用道具 举报

您需要登录后才可以回帖 登录 | 立即注册

本版积分规则

QQ|联系我们|豆豆网 ( 苏ICP备20004746号-1 )

GMT+8, 2025-12-21 01:20 , Processed in 0.020618 second(s), 27 queries .

本站所有内容均由网友自主分享,如有侵权内容或者违法行为,请及时联系站长删除,本站将根据实际情况进行积分奖励!请查看:免责声明

快速回复 返回顶部 返回列表