豆豆网

 找回密码
 立即注册

QQ登录

只需一步,快速开始

查看: 653|回复: 0

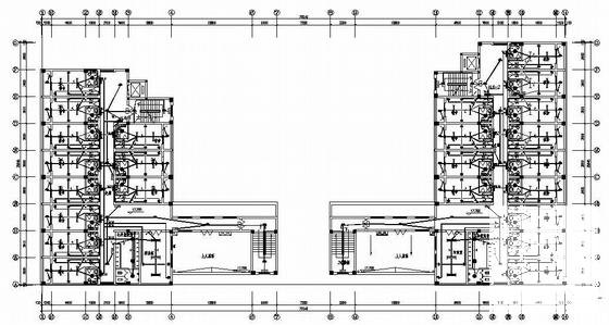
6层职工宿舍楼强电CAD施工图纸(防雷接地系统等)

[复制链接]

0

主题

0

帖子

1075

积分

超级版主

Rank: 8Rank: 8

积分
1075
发表于 2020-2-16 21:43:52 | 显示全部楼层 |阅读模式

该帖子包含附件可供参考学习和下载,您可以 搜索 更多您想要的资源


  • 建筑类别:住宅
  • 建筑高度类型:多层建筑
  • 建筑设计面积:7471平方米
  • 建筑地上层数:6层
  • 图纸设计深度:施工图
  • 参考图纸:9张
  • 设计年代:近代
  • 负荷等级:三级
  • 防雷等级:第三类
  • 接地方式:TN-S
  • 强电设计:低压配电,电气照明,建筑物防雷,接地安全
  • 弱电设计:机房工程

附件详情

该项目为某职工宿舍楼电气施工,地上六层,总建筑面积为747平方米,共六层。设计范围包括: 供配电系统 照明系统 防雷接地 系统等。


第 1 张图
第 1 张图
第 2 张图
第 2 张图
第 3 张图
第 3 张图
第 4 张图
第 4 张图
以上是部分图纸截图,有些图框没有放大后再截图,可能截图里不清晰或者看不到内容,您可以在下载后查看具体内容

温馨提示:该资料由网友于2020-2-16 21:43:52上传分享,您可以下载该资料进行学习和参考,如有侵权内容或者违法行为,请及时联系站长删除,如有疑问,您可以在建筑施工专区发帖交流相关知识。

附件2099v11edec22112s1c0c0edd1.rar

1.15 MB

下载  售价: 100 积分    赚积分

相关帖子

回复

使用道具 举报

您需要登录后才可以回帖 登录 | 立即注册

本版积分规则

QQ|联系我们|豆豆网 ( 苏ICP备20004746号-1 )

GMT+8, 2025-12-18 21:47 , Processed in 0.016428 second(s), 27 queries .

本站所有内容均由网友自主分享,如有侵权内容或者违法行为,请及时联系站长删除,本站将根据实际情况进行积分奖励!请查看:免责声明

快速回复 返回顶部 返回列表