豆豆网

 找回密码
 立即注册

QQ登录

只需一步,快速开始

查看: 2354|回复: 0

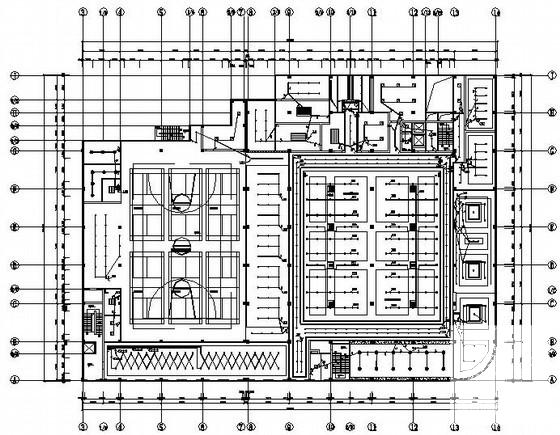
一份全民健身中心电气CAD图纸

[复制链接]

0

主题

0

帖子

1470

积分

超级版主

Rank: 8Rank: 8

积分
1470
发表于 2020-2-16 22:41:13 | 显示全部楼层 |阅读模式

该帖子包含附件可供参考学习和下载,您可以 搜索 更多您想要的资源


  • 建筑类别:体育
  • 建筑设计面积:9564.8平方米
  • 图纸设计深度:施工图
  • 参考图纸:20张
  • 设计年代:近代
  • 负荷等级:三级
  • 接地方式:TN-C-S
  • 强电设计:低压配电,电气照明

附件详情

  • 一、 电气设计 说明
  • 二、干线系统图
  • 三、 配电箱系统
  • 四、 照明平面图
  • 五、插座平面图

附件详情

该项目为某全民健身中心电气工程,框架结构,建筑面积为9564.8平方米,该项目负荷等级为三级负荷。设计包含配电设计、四层,五层照明、动力设计。

第 1 张图
第 1 张图
第 2 张图
第 2 张图
第 3 张图
第 3 张图
第 4 张图
第 4 张图
以上是部分图纸截图,有些图框没有放大后再截图,可能截图里不清晰或者看不到内容,您可以在下载后查看具体内容

温馨提示:该资料由网友于2020-2-16 22:41:13上传分享,您可以下载该资料进行学习和参考,如有侵权内容或者违法行为,请及时联系站长删除,如有疑问,您可以在电气工程专区发帖交流相关知识。

附件2099v11edecc1fe1scff2c0sff.rar

781.05 KB

下载  售价: 100 积分    赚积分

相关帖子

回复

使用道具 举报

您需要登录后才可以回帖 登录 | 立即注册

本版积分规则

QQ|联系我们|豆豆网 ( 苏ICP备20004746号-1 )

GMT+8, 2025-12-17 19:38 , Processed in 0.022656 second(s), 27 queries .

本站所有内容均由网友自主分享,如有侵权内容或者违法行为,请及时联系站长删除,本站将根据实际情况进行积分奖励!请查看:免责声明

快速回复 返回顶部 返回列表