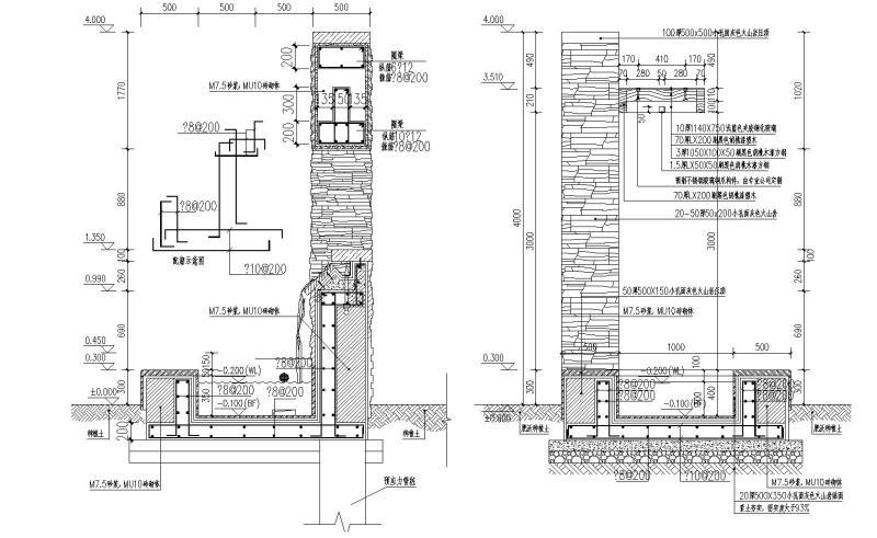
廊架水池做法详图纸设计_CAD
- 发布时间:2021-05-13
- 评论次数:0
- 浏览次数:0
- 文件大小:0.55 MB
- 收藏次数:0
-
文件名称:
附件-996068900099779956.dwg
水池做法详图下载
- 现代风格水池做法详大样图设计_CAD
- 廊架做法CAD详图纸
- 廊架施工做法CAD详大样图(立面图)(dwg)
- 12种廊架做法CAD详图纸(弧形廊架)(dwg)
- 山庄三个廊架做法CAD详图纸
- 小区主入口施工详全套设计CAD图纸(廊架详图)(dwg)
- 特色入口跌水池做法详大样图设计_CAD
- 双层廊架施工做法(屋顶平面图)
- 廊架施工图特色景观整套做法详图
- 一份弧型廊架施工做法详细设计CAD图纸(平面图)
- 一份景观廊架大样及做法详细设计CAD图纸2套
- 公园常用dwg格式CAD节点详大样图(廊架施工方案图)
- 地下车库扇形廊架做法CAD详图纸(dwg)
- 山庄三个廊架做法dwg格式CAD详图纸(结构详图)
- 水池铺装做法详图纸cad
- 水池铺装做法详图纸cad
- 廊架施工dwg格式CAD图纸(廊架平面图纸)(立面图)
- 景观园施跌水池做法详图纸设计_CAD
- 经典景观跌水池做法详图纸设计_CAD
- 叠水池做法CAD节点详图纸设计
全部评论
评论网友评论仅友表达个人看法,并不表明本站同意其观点,不得发布违反法律法规的内容!
