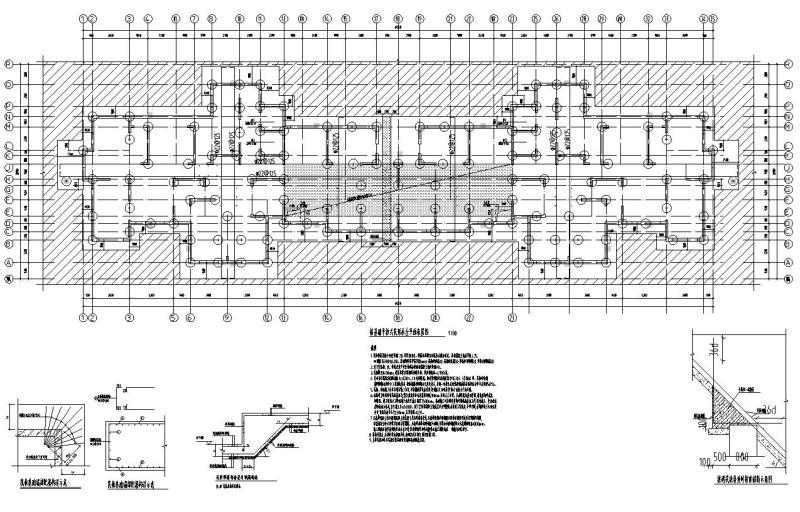
西北28层住宅混凝土剪力墙结构施工方案图纸CAD
- 发布时间:2021-05-13
 - 评论次数:0
 
- 浏览次数:0
 - 文件大小:4.17 MB
 
- 收藏次数:0
 - 
								文件名称:
 附件-996068098786768976.dwg
							 
								混凝土剪力墙结构下载
							
						- 西北地区24层剪力墙住宅楼结构设计CAD施工图纸
 - 高层板式住宅混凝土剪力墙结构施工方案图纸CAD
 - 6层混凝土剪力墙住宅结构施工方案图纸(CAD)
 - 24层剪力墙住宅混凝土结构施工方案图纸CAD大样图
 - 24层高层剪力墙住宅混凝土结构施工方案图纸CAD
 - 26层高层剪力墙住宅混凝土结构施工方案图纸CAD
 - 24层剪力墙住宅混凝土结构施工方案图纸CAD
 - 24层住宅混凝土剪力墙结构施工方案图纸CAD
 - 26层剪力墙住宅混凝土结构施工方案图纸CAD含建筑
 - 15层混凝土剪力墙结构住宅施工方案大样图(CAD)
 - 剪力墙结构住宅混凝土施工方案(41P).doc
 - 剪力墙住宅结构住宅结构设计方案CAD施工图纸
 - 剪力墙结构混凝土施工方案.doc
 - 型钢混凝土住宅结构施工CAD图纸
 - 框架剪力墙住宅建筑结构CAD图纸(现浇钢筋混凝土)
 - 框架剪力墙住宅部分结构CAD图纸(预应力混凝土管桩)(dwg)
 - 26层剪力墙住宅结构CAD图纸(现浇钢筋混凝土)(dwg)
 - 高层配筋混凝土砌块砌体剪力墙住宅结构CAD图纸
 - 18层配筋混凝土砌块砌体剪力墙住宅楼结构CAD图纸
 - 一份混凝土框架剪力墙结构住宅结构设计CAD施工图纸
 
全部评论
						
							评论网友评论仅友表达个人看法,并不表明本站同意其观点,不得发布违反法律法规的内容!
						
						