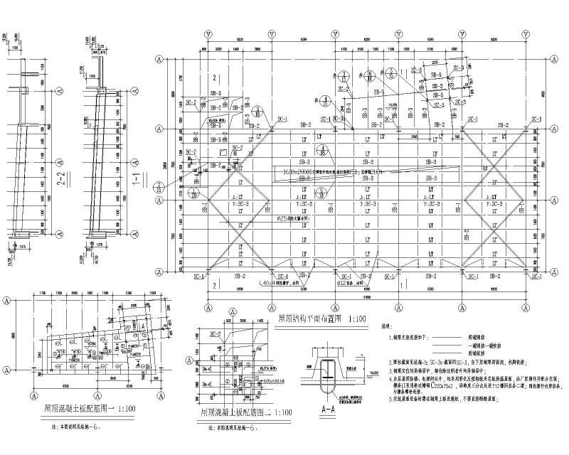
售楼部3层含地下室钢结构施工方案大样图CAD
- 发布时间:2021-05-13
- 评论次数:0
- 浏览次数:0
- 文件大小:2.06 MB
- 收藏次数:0
-
文件名称:
附件-996085779085678885.dwg
地下室结构施工方案下载
- 地下室结构钢筋施工方案.pdf
- 人防地下室结构施工方案.doc
- 地下室结构施工总结.doc
- 框筒结构地下室结构施工方案(附图多,值得收藏).doc
- 地下室结构方案经济性分析.pdf
- 地下室结构伸缩缝防水方案.pdf
- 框架剪力墙结构综合楼地下室底板施工方案_CAD
- 水下单层框架结构地下室CAD施工方案图纸
- 一份带地下室砌体住宅结构CAD施工方案图纸
- 一份地下室CAD大样图纸(结构施工方案图)
- 办公楼混凝土工程施工方案(地下室结构)
- 两层地下室结构施工方案图纸(dwg格式CAD)
- 28层剪力墙住宅结构施工方案图纸带地下室CAD
- 3层别墅带地下室混凝土结构施工方案大样图CAD
- 负3层地下室人防结构施工方案图纸CAD
- 4层小型别墅带地下室混凝土结构施工方案图纸CAD
- 2层旅游商业含地下室混凝土结构施工方案图纸CAD
- 多层住宅带地下室混凝土结构施工方案图纸CAD
- 砖混2层别墅带地下室结构施工方案图纸CAD
- 住宅大型地下室混凝土结构施工方案图纸CAD
全部评论
评论网友评论仅友表达个人看法,并不表明本站同意其观点,不得发布违反法律法规的内容!
