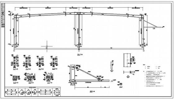
带5.5米大雨篷钢结构仓库设计CAD施工图纸
- 发布时间:2021-04-28
 - 评论次数:0
 
- 浏览次数:0
 - 文件大小:0.67 MB
 
- 收藏次数:0
 - 
								文件名称:
 附件-995878977589596807878.rar
							 
								钢结构仓库施工图下载
							
						- 5m全套钢结构大雨篷施工节点构造详图纸cad
 - 24米跨带女儿墙的钢结构仓库设计CAD图纸
 - 钢结构仓库强电施工CAD图纸
 - 钢结构雨篷详图纸cad
 - [柱间支撑]幕墙大雨棚设计详细CAD图纸
 - 单层悬挑雨篷钢结构施工CAD图纸
 - 一份带夹层24米跨钢结构大型仓库结构CAD施工图纸
 - 钢结构大型仓库结构CAD施工图纸(带夹层24米跨)(dwg)(8度抗震)
 - 仓库厂房钢结构设计CAD图纸(dwg)
 - 仓库厂房钢结构设计CAD图纸
 - 公司仓库钢结构CAD施工方案图纸
 - 24米钢结构仓库施工CAD图纸(节点)
 - 钢结构厂房雨篷构造CAD详图纸(dwg)
 - 钢结构雨篷节点构造CAD详图纸(dwg)
 - 雨篷钢结构节点构造CAD详图纸(dwg)
 - 弧形钢结构玻璃雨篷结构图纸.
 - 钢结构雨篷铝单板幕墙节点图纸(CAD)
 - 钢结构雨篷节点构造详图纸cad
 - 钢结构雨篷节点构造详图纸cad
 - 钢结构雨篷节点构造详图纸cad
 
全部评论
						
							评论网友评论仅友表达个人看法,并不表明本站同意其观点,不得发布违反法律法规的内容!
						
						