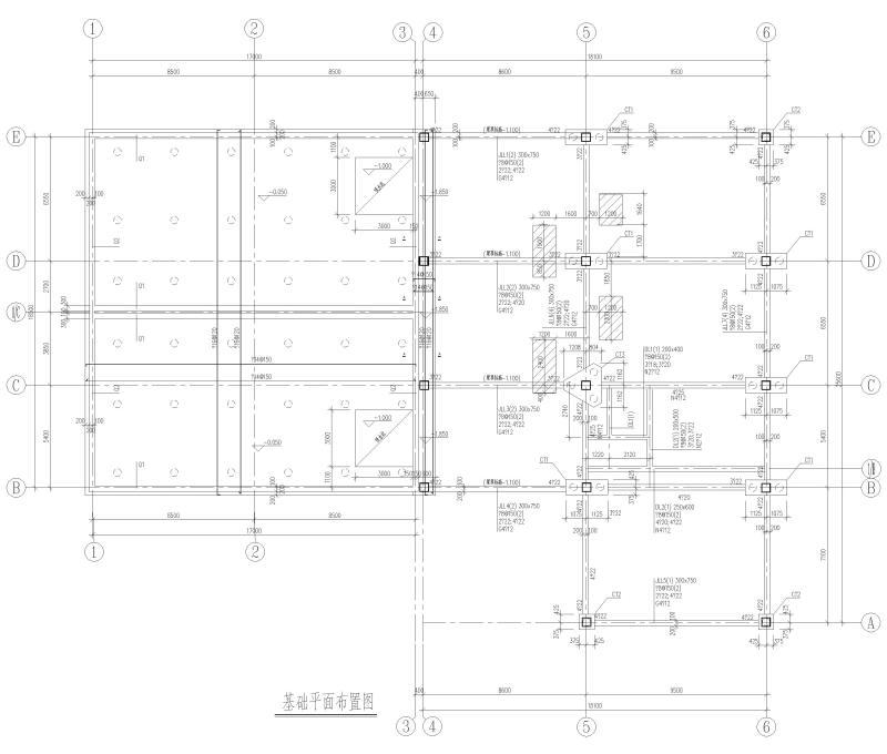
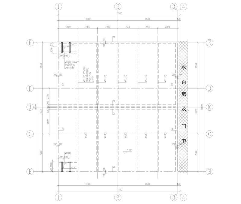
单层框架结构水泵房及门卫室全套CAD施工图纸
- 发布时间:2021-05-13
- 评论次数:0
- 浏览次数:0
- 文件大小:12.58 MB
- 收藏次数:0
- 
								文件名称: 附件-996085770585787586.zip 附件-996085770585787586.zip
								框架结构结构施工图下载
							
						- 异型柱框架结构CAD施工图纸(dwg)
- 5层框架结构CAD施工图纸(dwg)
- 框架结构CAD施工图纸(dwg)
- 5层框架结构CAD施工图纸(dwg)
- 小型住宅框架结构CAD施工图纸(dwg)
- 小学框架结构CAD施工图纸(dwg)
- 框架结构土建施工图预算cad
- 单层框架结构工业厂房施工图2021
- 单层框架结构接待中心施工图2023
- 多层疾控中心框架结构施工图2023
- 4层框架结构美食广场框架结构设计CAD施工图纸
- 3层框架结构幼儿园结构施工图cad板结构施工图
- [CAD]3层异形柱框架结构施工图纸(建筑施工图纸)
- 5层框架结构综合楼建筑结构CAD施工图纸
- 单层框架结构公厕CAD施工图纸(建筑结构)
- 3层框架结构别墅结构CAD施工图纸(建筑图纸)
- 3层框架结构私人别墅建筑结构CAD施工图纸
- 异形柱框架结构别墅结构CAD施工图纸(dwg格式、14张)
- 小学3层框架结构综合楼结构CAD施工图纸
- 6层框架结构喜盈门小学结构CAD施工图纸(阶梯教室)
全部评论
						
							评论网友评论仅友表达个人看法,并不表明本站同意其观点,不得发布违反法律法规的内容!
						
						
 
	              	 
	              	 
	              	 
	              	 
	              	